LDK一体型の間取りはなぜ人気なのか?
1.LDK一体型の間取りはなぜ人気なのか?
LDK一体型とは… L(リビング)D(ダイニン)K(キッチン)の間に壁が無く、空間を仕切らずに開放感を演出した間取りのことです。
2.どうしてLDK一体型の間取りは良いのか?
2-1.家事の効率が良い!
料理が完成した後、ダイニングテーブルに運んだりするのも一苦労です。対面キッチンならリビングやダイニングから料理の過程が分かるので効率良く配膳をすることができます。また、キッチンで洗い物をしながらリビングにあるテレビが見れるので、家族とテレビの話題を一緒に話すこともでき、疎外感を感じずに家事をこなすことができます。
2-2.視界を遮るものがなく開放感がある
通常のLDKの場合、リビング・ダイニング・キッチンがそれぞれ一つの空間に仕切られています。しかし、リビングにいるお子さんの様子がキッチンからは分からないので、気になって何度か料理を中断して見にいくようなこともあるのではないでしょうか? 一体型のLDKなら遮る物が無く、どこにいても家族の気配を常に感じることができます。また、薄暗くなりがちなキッチンにも窓から光が入り明るい空間になります。
2-3.家族間のコミュニケーションが広がる
キッチンで洗い物をする人、ダイニングで勉強をする人、リビングでテレビを見ている人などと家族がそれぞれ別のことをしていても、どこで何をしているのかが見えて常にコミュニケーションをとることができます。
2-4.家具の配置で変わるLDK
家具の配置を変えるだけでも空間を分けることができます。開放感は欲しいけれどそれぞれの空間は分けたいという方からもLDK一体型は好評です!ソファや棚で空間を仕切ったり、開放感はそのままでお部屋のコーディネイトをより楽しむことができます。
3.人気の間取りの紹介
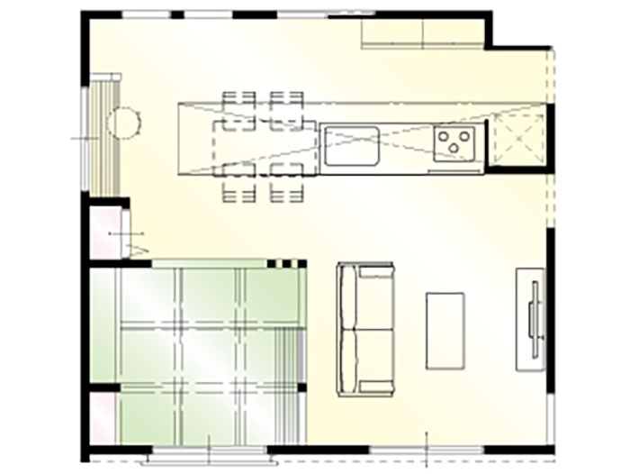
3-1.キッチンとダイニングが横並び

(間取り1)
3-2.キッチンとダイニングが対面

(間取り2)
3-3.キッチンと窓が対面

(間取り3)
間取り1~間取り3で共通していることは、『リビングの方を向いてキッチンが配置されている』ということです。間取り1の場合、キッチンと横並びにダイニングデーブルがあるので、出来立ての料理をすぐにダイニングへ運ぶことができます。間取り2は、お料理をしながら前を向くだけでリビングやダイニングにいる家族の様子やテレビが見えるので、孤立することなく家族とコミュニケーションが取りやすくなります。3番目の間取りは、キッチンの裏にランドリーがあり、水まわりの動線が確保されているため家事の効率が良くオススメです。
4.ベスト・ハウジングの人気の一体型LDK





5.まとめ
最近は、以前よりもお家にいる時間が長くなっている方が多いのではないでしょうか?こんな時だからこそ、いかにストレス無くお家で快適に暮らせるかがポイントになってきますよね。建売住宅といってもいろんなカタチがありますので、この機会に自分の生活スタイルに合った間取りを探してみてはいかがでしょうか?毎週末に現地見学会も開催しています。ぜひ、お気軽にご相談くださいね(^^♪