
2025年8月以降の入居で検討されている方は、ぜひこの機会にご検討ください♪
ポイント
家族の笑顔が広がる庭のある暮らし!
- 広々87坪以上の土地&アウトドアリビング
- 駐車3台以上可能で、庭スペースも確保◎
- 都田テクノロード沿いにありお出掛けの際にも便利です!
- バス停まで徒歩1分!毎日の通勤通学もラクラク♪
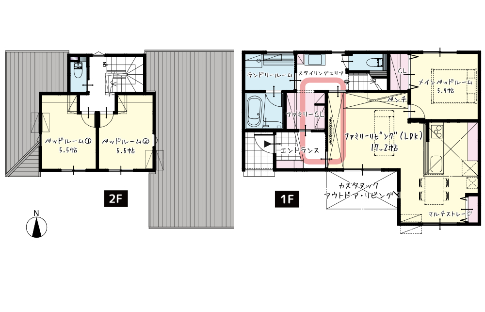
間取り

現地の様子


標準搭載
地盤調査、地盤保証
液状化調査
耐震等級3の仕様
地震対策ミライエ施工
防犯ガラス
抗ウイルスフローリング
建売・分譲住宅特典
リビングエアコン
全室LED照明
ソファ
ダイニングセット
照明
※付いている家具の詳細は物件により異なります。
詳しくはお気軽にお問い合わせください♪
