
物件概要・詳細

- 物件名
- 富塚町19期
- 総区画
- 限定1区画分譲地情報
- 土地面積
- 179.92㎡(54.42坪)
- 建物面積
- 101.22㎡(30.61坪)
- 完成時期
- 2025年10月(即引渡可)
- 建築確認番号
- 第2025確認建築静建住ま01284号
- 構造工法
- 木造2階建
- 施工会社
- 株式会社ベスト・ハウジング
- 地目
- 宅地
- 用途地域
- 第一種低層住居専用地域
- 土地権利形態
- 所有権
- 学区
- 富塚小学校、富塚中学校
- その他概要
- ■売主物件のため仲介手数料は不要です
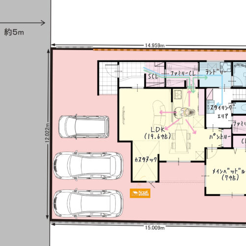
道路:道路幅 約5m
アスファルト舗装
建ぺい率:50%
容積率:80%
遠鉄バス「うさぎ橋」停まで徒歩4分

物件の特徴
平屋風の利便性と、2階建てによるプライベート空間の確保を両立した間取りです。
くつろぎ空間LDK (19.6帖): 約20帖という広々としたLDKは、家族が集まる中心となる空間です。リビング側はくつろげるように掃き出し窓がない仕様にしました。
自由に使えるカスタヌック(3帖):天井を折り下げているので空間を分けられた使い方もできます。必要に応じてセカンドリビングやゲストルーム、趣味のスペースとしても活用できるため、家族構成やライフスタイルの変化にも対応しやすい設計です。
1階のメインベッドルーム:生活の中心が1階で完結できる! 起床から就寝まで、日常の主要な活動(食事、リビングでのくつろぎ、入浴、そして就寝)をすべて1階で行うことができます。
豊富な収納: ファミリーCLが2ヵ所あり、階段の昇り降りが無い収納動線が家事効率が格段に上げてくれます。
周辺環境

主婦の店富塚店:車約2分(1011m)
ローソン浜松富塚北店:車約2分(1080m)
杏林堂薬局富塚店:車約3分(1512m)
浜松市立富塚中学校:徒歩11分(850m)
浜松市立富塚小学校:徒歩7分(550m)
権現谷保育園:徒歩6分(453m)
富塚幼稚園:徒歩8分(573m)
浜松富塚郵便局:車約2分(965m)
富塚公園:徒歩4分(277m)
遠鉄バス「うさぎ橋」停:徒歩4分(325m)
生活の利便性と子育て環境が調和した住環境!
子育て安心!小・中学校、公園も徒歩圏内の好立地!
保育園・幼稚園も近く送り迎えもスムーズです♪
バス停徒歩4分!多方面へのアクセスも良好です。
設備・構造

省エネ性能ラベル
「省エネ性能ラベル」で分かること
① 消費エネルギーが低いほど星の数が増える
② 断熱性能が高いほど家のマークが増える
③ 光熱費の目安が確認できる

制震ダンパーミライエ
このダンパーは高減衰ゴムを使用しており、地震の揺れを効率的に吸収することで、家の損傷を軽減します。また、繰り返し発生する余震にも効果を発揮し、家族とお家を守ります。

EV屋外コンセント/Panasonic
充電用コンセントに求められる「利便性」の向上を実現したEV・PHEV充電用屋外コンセント。片手だけでもプラグの抜き差しができるよう配慮されています。

高圧力パワフル給湯/CORONA CHP-E37AZ1
パワフルシャワーで快適!減圧弁設定圧力260kPaで給湯圧力が1.5倍!コロナの高圧力パワフル給湯なら、家族みんなが喜ぶパワフルシャワーが楽しめます。(※イメージ写真)

抗ウイルスフローリング
朝日ウッドテックの抗ウイルスフローリング採用。99%以上の抗菌・抗ウイルス効果で繁殖を抑制し、傷や汚れにも強く、お手入れも簡単です。

YKKAPの防犯ガラス
防犯性能の高い建物部品として官民合同会議に認定され、破れても飛散しにくいため、災害時にも安心。また、紫外線をカットする樹脂中間膜が入っています。

タカラのキッチン
オフェリアは、美しさと機能性を兼ね備えたシンプルながら上質なデザイン。収納スペースも豊富で調理や片付けがスムーズに行えます。高い耐久性と衛生性も備え、長期間快適に使えます。

TOTOのバスルーム
サザナは、お手入れがラクな機能が満載。乾きやすくカビにくい床や断熱材で包まれた魔法びん浴槽、浴室換気暖房乾燥機付きで常に清潔な環境を保ちます。使いやすさにもこだわった設計で、快適なバスタイムを過ごせます。

タカラの洗面化粧台
エリシオは、天然石のような美しい質感が特徴。広いカウンターにたっぷりの収納スペースがあり、水栓もスタイリッシュで使い勝手も良い。汚れがつきにくくお手入れも簡単です。

TOTOのトイレ
GG-J2は、機能性が充実。暖房機能や脱臭機能などで冬でも快適。環境に優しく、水の節約にも配慮。清掃性も高く、お手入れが簡単です。

剛床構造
剛床構造は、床に剛性を持たせることで耐震性を高める構造です。地震による床の歪みを最小限に抑え、建物全体の歪みを均等に分散し、建物の倒壊を防ぎます。一般の在来工法に比べて約3倍の剛性があります。

一体型コンクリート基礎
継ぎ目のない頑丈な一体ベタ基礎。基礎全体で建物の重さを支えるため、地震や台風などの衝撃を効果的に地盤へ逃がすことができます。また、湿気やカビの発生を防止することができ、断熱効果にも優れています。

断熱シート
タイベックシルバーは、トータルバランスに優れた通気層構法における外装下地材。夏涼しく冬暖かいという遮熱性能と、躯体の劣化や腐敗を防ぐ透湿・防水機能に優れているだけでなく、これらの性能が長続きする強靭な建材です。

アフター定期点検保証
お引渡し前には、弊社で100項目以上の社内検査を行っております。 アフター定期訪問は、建物の引渡し後、一般的には1年目、5年目、10年目に行わせていただいております。

家具やエアコン付き
弊社の建売住宅は、リビングエアコン、全室LED照明、ソファ、ダイニングセット、スツールがついています!快適な生活を手軽に始められます。

優秀賞+省エネ住宅優良企業賞 W受賞
優れた省エネルギー住宅を表彰する制度「ハウスオブザイヤーインエナジー2022」において、優秀賞を3年連続で達成しました。2022年は、省エネ住宅優良企業賞も受賞しました!

ZEHビルダー4つ星獲得
ZEHビルダー評価制度で4つ星(★★★★)を獲得しました!私たちは引き続き環境と人に優しいゼロエネルギー住宅の普及を目指し、星6つを目指して取り組んでまいります。
