
物件概要・詳細

- 物件名
- 富塚町17期
- 総区画
- 限定1区画分譲地情報
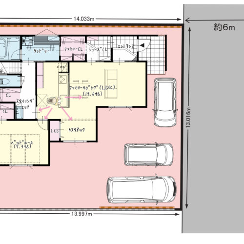
- 土地面積
- 182.38㎡(55.16坪)
- 建物面積
- 102.15㎡(30.90坪)
- 完成時期
- 2025年10月(即引渡可)
- 建築確認番号
- 第2025確認建築静建住ま01010号
- 構造工法
- 木造2階建
- 施工会社
- 株式会社ベスト・ハウジング
- 地目
- 宅地
- 用途地域
- 第一種低層住居専用地域
- 土地権利形態
- 所有権
- 学区
- 富塚小学校、富塚中学校
- その他概要
- ■売主物件のため仲介手数料は不要です
道路:道路幅 東側約6m、
アスファルト舗装
建ぺい率:50%、
容積率:80%
遠鉄バス「富塚小学校」停まで徒歩8分

物件の特徴
たっぷりの陽光が降り注ぐリビングと、家族それぞれの荷物をすっきり収納できる空間設計。
広々としたLDK空間: 19.6帖のLDKは家族団らんの場として最適。明るく開放的で、自然と家族が集まる心地よさを提供します。
充実した収納: ファミリーCL、シューズCLや、各スペースにそっと寄り添うクローゼットで、収納場所に困らず、室内を常に整理整頓できます。 2階の洋室もそれぞれ収納を備え、プライベートな時間を快適に過ごせます。
効率的な家事動線と便利なランドリースペース: 洗濯作業がササっとできる広々ランドリーから収納もすぐできるファミリーCLが配置され、スムーズな家事動線を実現。
夢膨らむプライベートガーデン: 駐車スペースと庭が分かれているので、安心して過ごせます。リビングから繋がるアウトドアリビングとしても愉しめます♪ガーデニングはもちろん、DIYやちょっとした運動など、多目的に活用できます。
★家事の効率も考えられた、浜松で始まる新しい暮らし!
周辺環境

ユーコープ富塚店:車約2分(946m)
ローソン浜松富塚店:車約2分(1300m)
杏林堂薬局富塚店:車約2分(1100m)
浜松市立富塚中学校:徒歩10分(750m)
浜松市立富塚小学校:徒歩5分(350m)
富塚幼稚園:車約2分(800m)
権現谷保育園:車約2分(900m)
浜松富塚郵便局:車約2分(800m)
JAとぴあ浜松富塚支店:徒歩7分(547m)
富塚公園:徒歩9分(700m)
設備・構造

省エネ性能ラベル
「省エネ性能ラベル」で分かること
① 消費エネルギーが低いほど星の数が増える
② 断熱性能が高いほど家のマークが増える
③ 光熱費の目安が確認できる

制震ダンパーミライエ
このダンパーは高減衰ゴムを使用しており、地震の揺れを効率的に吸収することで、家の損傷を軽減します。また、繰り返し発生する余震にも効果を発揮し、家族とお家を守ります。

EV屋外コンセント/Panasonic
充電用コンセントに求められる「利便性」の向上を実現したEV・PHEV充電用屋外コンセント。片手だけでもプラグの抜き差しができるよう配慮されています。

高圧力パワフル給湯/CORONA CHP-E37AZ1
パワフルシャワーで快適!減圧弁設定圧力260kPaで給湯圧力が1.5倍!コロナの高圧力パワフル給湯なら、家族みんなが喜ぶパワフルシャワーが楽しめます。(※イメージ写真)

抗ウイルスフローリング
朝日ウッドテックの抗ウイルスフローリング採用。99%以上の抗菌・抗ウイルス効果で繁殖を抑制し、傷や汚れにも強く、お手入れも簡単です。

タカラのキッチン
オフェリアは、美しさと機能性を兼ね備えたシンプルながら上質なデザイン。収納スペースも豊富で調理や片付けがスムーズに行えます。高い耐久性と衛生性も備え、長期間快適に使えます。

TOTOのバスルーム
サザナは、お手入れがラクな機能が満載。乾きやすくカビにくい床や断熱材で包まれた魔法びん浴槽、浴室換気暖房乾燥機付きで常に清潔な環境を保ちます。使いやすさにもこだわった設計で、快適なバスタイムを過ごせます。

LIXILの防犯ガラス
特殊中間膜により、防犯機能を向上し破損時にも飛散しにくいため、災害時にも安心。遮熱・断熱性能も高く、エネルギー効率にも優れ、紫外線もほぼ100%カットしてくれます。

タカラの洗面化粧台
エリシオは、天然石のような美しい質感が特徴。広いカウンターにたっぷりの収納スペースがあり、水栓もスタイリッシュで使い勝手も良い。汚れがつきにくくお手入れも簡単です。

TOTOのトイレ
GG-J2は、機能性が充実。暖房機能や脱臭機能などで冬でも快適。環境に優しく、水の節約にも配慮。清掃性も高く、お手入れが簡単です。

剛床構造
剛床構造は、床に剛性を持たせることで耐震性を高める構造です。地震による床の歪みを最小限に抑え、建物全体の歪みを均等に分散し、建物の倒壊を防ぎます。一般の在来工法に比べて約3倍の剛性があります。

一体型コンクリート基礎
継ぎ目のない頑丈な一体ベタ基礎。基礎全体で建物の重さを支えるため、地震や台風などの衝撃を効果的に地盤へ逃がすことができます。また、湿気やカビの発生を防止することができ、断熱効果にも優れています。

断熱シート
タイベックシルバーは、トータルバランスに優れた通気層構法における外装下地材。夏涼しく冬暖かいという遮熱性能と、躯体の劣化や腐敗を防ぐ透湿・防水機能に優れているだけでなく、これらの性能が長続きする強靭な建材です。

アフター定期点検保証
お引渡し前には、弊社で100項目以上の社内検査を行っております。 アフター定期訪問は、建物の引渡し後、一般的には1年目、5年目、10年目に行わせていただいております。

家具やエアコン付き
弊社の建売住宅は、リビングエアコン、全室LED照明、ソファ、ダイニングセット、スツールがついています!快適な生活を手軽に始められます。

優秀賞+省エネ住宅優良企業賞 W受賞
優れた省エネルギー住宅を表彰する制度「ハウスオブザイヤーインエナジー2022」において、優秀賞を3年連続で達成しました。2022年は、省エネ住宅優良企業賞も受賞しました!

ZEHビルダー4つ星獲得
ZEHビルダー評価制度で4つ星(★★★★)を獲得しました!私たちは引き続き環境と人に優しいゼロエネルギー住宅の普及を目指し、星6つを目指して取り組んでまいります。
