
物件概要・詳細

- 物件名
- 上島1丁目14期B号地
- 総区画
- 2区画分譲地情報
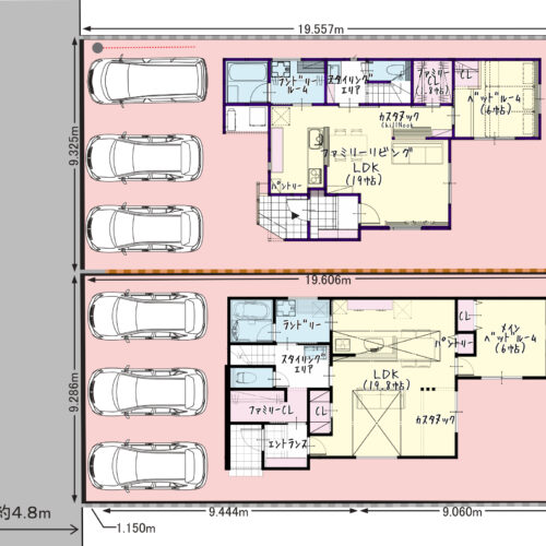
- 土地面積
- 182.59㎡(55.23坪)
- 建物面積
- 92.53㎡(27.98坪)
- 完成時期
- 2026年8月
- 建築確認番号
- 第2025確認建築静建住ま11631号
- 構造工法
- 木造2階建
- 施工会社
- 株式会社ベスト・ハウジング
- 地目
- 宅地
- 用途地域
- 第一種住居地域
- 土地権利形態
- 所有権
- 学区
- 上島小学校、曳馬中学校
- その他概要
- ■売主物件のため仲介手数料は不要です
道路:道路幅 南西約4.8m、
アスファルト舗装
建ぺい率:60%
容積率:200%
遠鉄バス「京田」徒歩3分
遠州鉄道「曳馬」駅まで徒歩9分
遠州鉄道「上島」駅まで徒歩11分

物件の特徴
タイパで生んだ余裕を、デザインで満たす家。
家事動線を効率化し、浮いた時間をこだわりのインテリアの中で楽しむ贅沢。
■共働きや忙しい現代人に嬉しい、洗練されたタイパ家事動線
ランドリー → スタイリングエリア→ファミリーCL::脱衣・洗濯・身支度が一直線に繋がっています。「スタイリングエリア」という独立したスペースがあることで、朝の忙しい時間帯も家族で渋滞せず、ホテルのような優雅な気分で準備ができます。
1階完結型の主寝室::1階にメインの寝室があるため、若いうちは平屋のような感覚で生活でき、将来階段の上り下りが辛くなっても安心です。
■「魅せる」と「隠す」のメリハリが完璧
ファミリーCL: 玄関から入ってすぐに大きな収納があるため、リビングにコートやカバンが散らかりません。常に「生活感のないモデルハウスのような状態」をキープしやすい設計です。
パントリーの配置:キッチン横のパントリーがメインベッドルームへの通路も兼ねており、無駄な廊下を作らずに収納量を確保しています。
■圧倒的な開放感と「抜け感」
LDK: 19.8帖という広さに加え、リビングやキッチンの天井には折り上げ・折り下げ天井でゾーニングされています。アッシュ系の床やベージュ系の壁が、空間全体を柔らかく明るい印象にしてくれるはずです。
カスタヌック:お子さんが小さいうちは「遊び場」、集中したい時は「ワークスペース」、リラックスしたい時は「ヌック(読書コーナー)」と、ライフステージに合わせて使い道をカスタマイズできます。
周辺環境

上島小まで徒歩5分!四ツ池公園近く子育て世代に嬉しい住環境
セブンイレブン浜松曳馬6丁目店:徒歩3分(187m)
フィールみのりタウン:車約2分(797m)
スギドラッグ早出店:車約2分(797m)
ダイソー浜松早出店:車約2分(894m)
ドトールコーヒーEneJet浜松上島店:徒歩7分(531m)
コジマ×ビックカメラ浜松店:車約1分(585m)
浜松市立上島小学校:徒歩5分(340m)
浜松市立曳馬中学校:徒歩16分(1250m)
上島幼稚園:車約1分(300m)
まつばこども園:徒歩6分(465m)
LIGHT HOUSE保育園:車約1分(500m)
四ツ池公園:徒歩12分(911m)
遠鉄バス「京田」停:徒歩3分(200m)
遠鉄バス「阿弥陀」停:徒歩3分(227m)
遠州鉄道「曳馬」駅:徒歩9分(700m)
遠州鉄道「上島」駅:徒歩11分(890m)
設備・構造

省エネ性能ラベル
「省エネ性能ラベル」で分かること
① 消費エネルギーが低いほど星の数が増える
② 断熱性能が高いほど家のマークが増える
③ 光熱費の目安が確認できる

制震ダンパーミライエ
このダンパーは高減衰ゴムを使用しており、地震の揺れを効率的に吸収することで、家の損傷を軽減します。また、繰り返し発生する余震にも効果を発揮し、家族とお家を守ります。

EV屋外コンセント/Panasonic
充電用コンセントに求められる「利便性」の向上を実現したEV・PHEV充電用屋外コンセント。片手だけでもプラグの抜き差しができるよう配慮されています。(※イメージ写真)

高圧力パワフル給湯/CORONA CHP-E37AZ1
パワフルシャワーで快適!減圧弁設定圧力260kPaで給湯圧力が1.5倍!コロナの高圧力パワフル給湯なら、家族みんなが喜ぶパワフルシャワーが楽しめます。(※イメージ写真)

抗ウイルスフローリング
朝日ウッドテックの抗ウイルスフローリング採用。99%以上の抗菌・抗ウイルス効果で繁殖を抑制し、傷や汚れにも強く、お手入れも簡単です。(※イメージ写真)

YKKAPの防犯ガラス
防犯性能の高い建物部品として官民合同会議に認定され、破れても飛散しにくいため、災害時にも安心。また、紫外線をカットする樹脂中間膜が入っています。(※イメージ写真)

タカラスタンダードのキッチン
オフェリアは、美しさと機能性を兼ね備えたシンプルながら上質なデザイン。
金属とガラス、それぞれのいいところをあわせもつホーローを随所に採用。水や汚れ、熱に強く日々のお手入れは水拭きでOK!マグネットもくっつきます!
収納スペースも豊富で調理や片付けがスムーズに行えます。高い耐久性と衛生性も備え、長期間快適に使えます。(※イメージ写真)

TOTOのバスルーム
サザナは、お手入れがラクな機能が満載。乾きやすくカビにくい床や断熱材で包まれた魔法びん浴槽、浴室換気暖房乾燥機付きで常に清潔な環境を保ちます。使いやすさにもこだわった設計で、快適なバスタイムを過ごせます。(※イメージ写真)

タカラスタンダードの洗面化粧台
エリシオは、天然石のような美しい質感が特徴。広いカウンターにたっぷりの収納スペースがあり、水栓もスタイリッシュで使い勝手も良い。汚れがつきにくくお手入れも簡単です。(※イメージ写真)

TOTOのトイレ
GG-J2は、機能性が充実。暖房機能や脱臭機能などで冬でも快適。環境に優しく、水の節約にも配慮。清掃性も高く、お手入れが簡単です。(※イメージ写真)

剛床構造
剛床構造は、床に剛性を持たせることで耐震性を高める構造です。地震による床の歪みを最小限に抑え、建物全体の歪みを均等に分散し、建物の倒壊を防ぎます。一般の在来工法に比べて約3倍の剛性があります。

一体型コンクリート基礎
継ぎ目のない頑丈な一体ベタ基礎。基礎全体で建物の重さを支えるため、地震や台風などの衝撃を効果的に地盤へ逃がすことができます。また、湿気やカビの発生を防止することができ、断熱効果にも優れています。

断熱シート
タイベックシルバーは、トータルバランスに優れた通気層構法における外装下地材。夏涼しく冬暖かいという遮熱性能と、躯体の劣化や腐敗を防ぐ透湿・防水機能に優れているだけでなく、これらの性能が長続きする強靭な建材です。

アフター定期点検保証
お引渡し前には、弊社で100項目以上の社内検査を行っております。 アフター定期訪問は、建物の引渡し後、一般的には1年目、5年目、10年目に行わせていただいております。

家具やエアコン付き
弊社の建売住宅は、リビングエアコン、全室LED照明、ソファ、ダイニングセット、スツールがついています!快適な生活を手軽に始められます。

優秀賞+省エネ住宅優良企業賞 W受賞
優れた省エネルギー住宅を表彰する制度「ハウスオブザイヤーインエナジー2022」において、優秀賞を3年連続で達成しました。2022年は、省エネ住宅優良企業賞も受賞しました!

ZEHビルダー4つ星獲得
ZEHビルダー評価制度で4つ星(★★★★)を獲得しました!私たちは引き続き環境と人に優しいゼロエネルギー住宅の普及を目指し、星6つを目指して取り組んでまいります。
