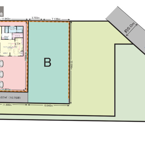
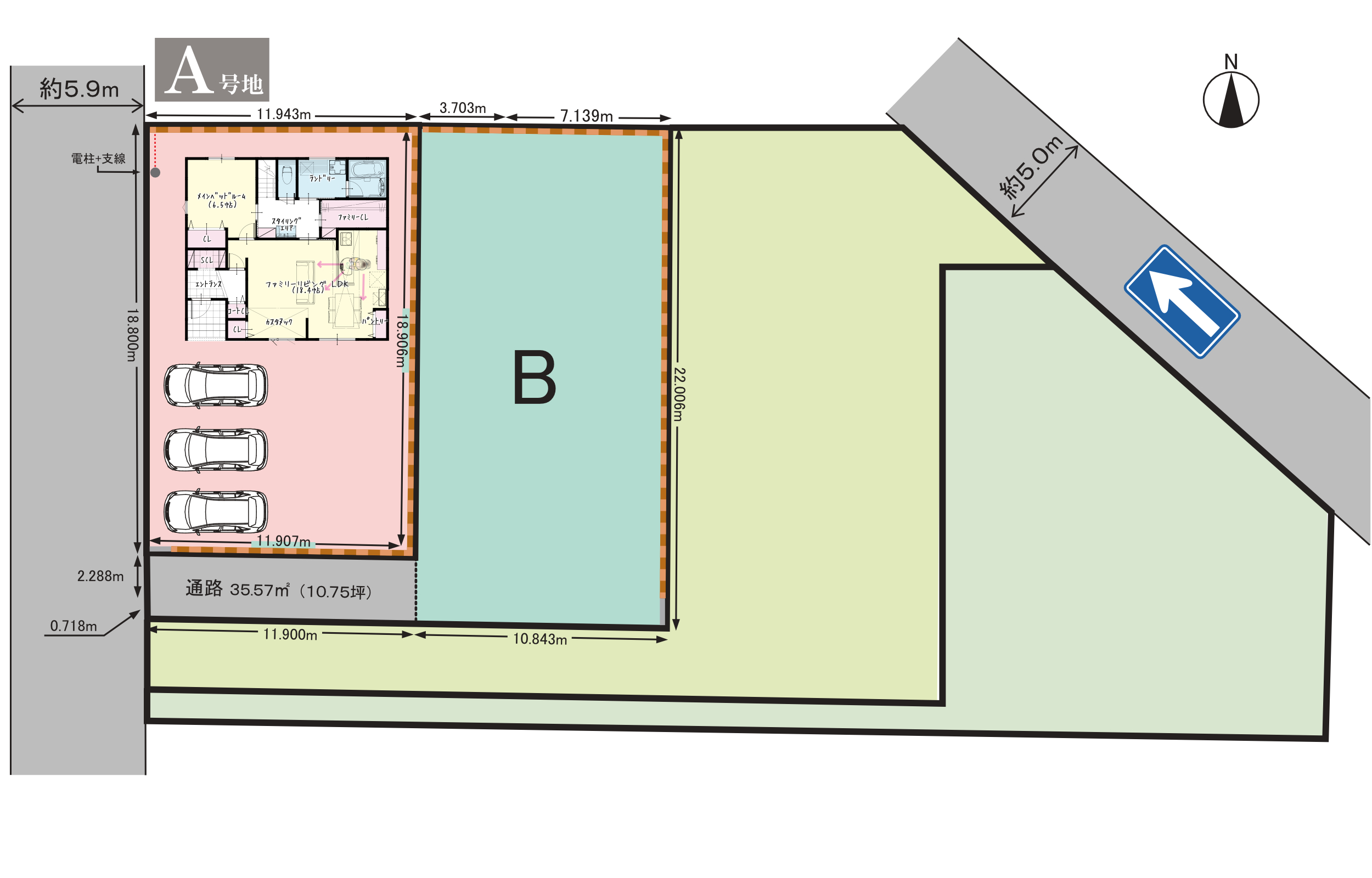
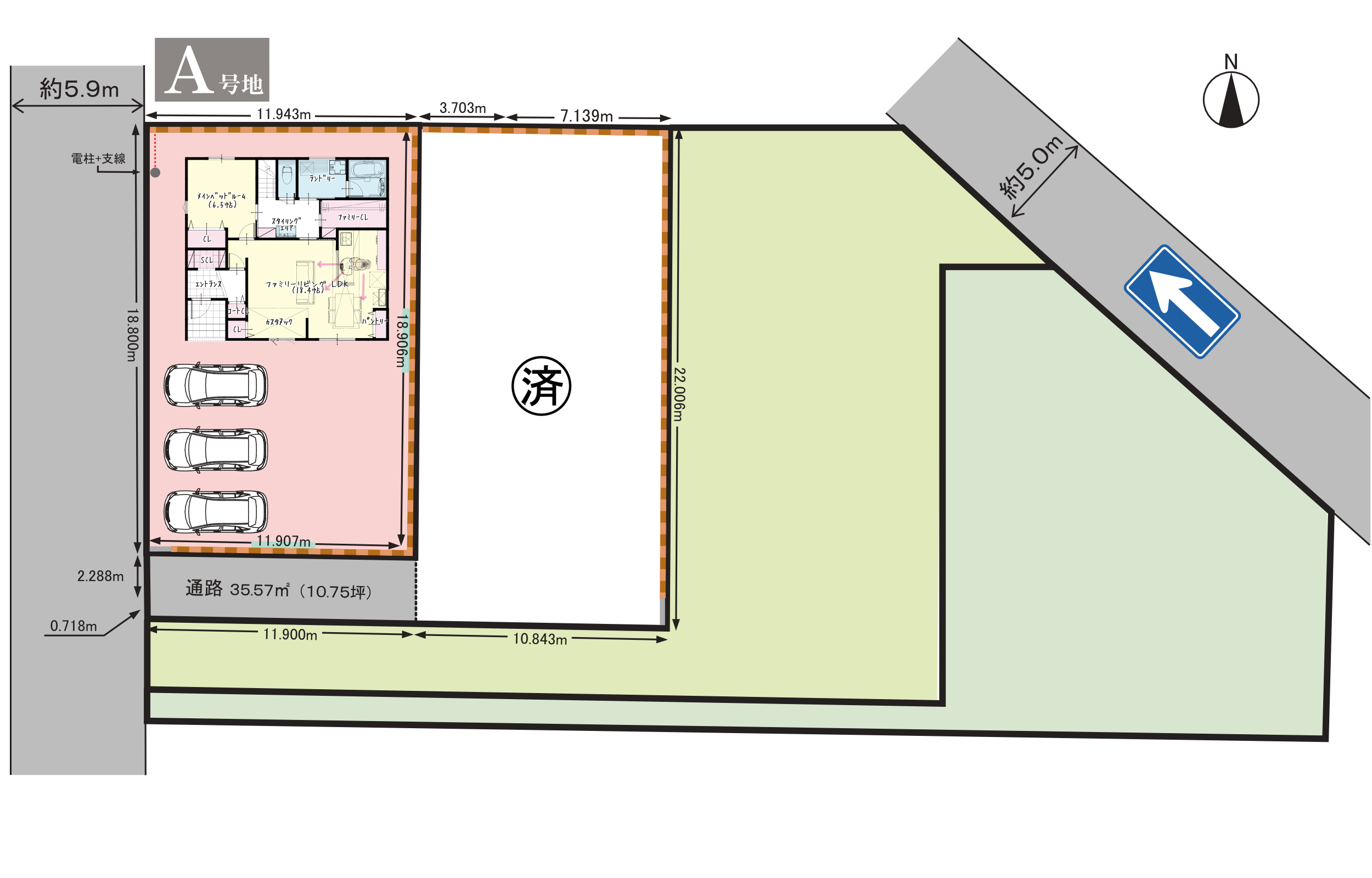
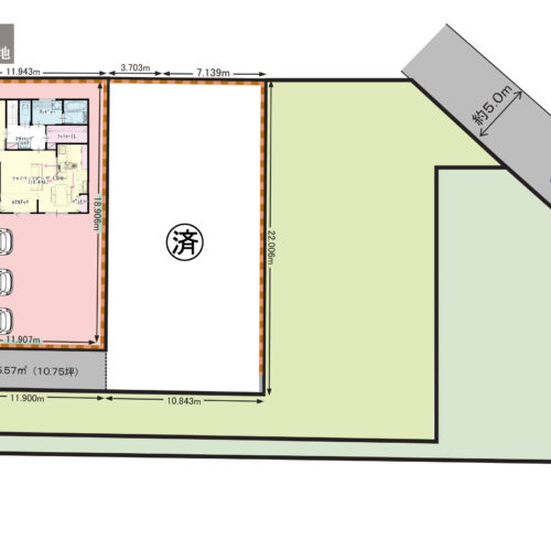
物件概要・詳細

- 物件名
- 初生町25期A号地
- 総区画
- 2区画分譲地情報
- 土地面積
- 224.81㎡(68.00坪)
- 建物面積
- 96.05㎡(29.05坪)
- 完成時期
- 2026年6月
- 建築確認番号
- 第2025確認建築静建住ま08740号
- 構造工法
- 木造2階建
- 施工会社
- 株式会社ベスト・ハウジング
- 地目
- 畑
- 土地権利形態
- 所有権
- 学区
- 初生小学校、北星中学校
- その他概要
- 道路:道路幅 西側約5.9m、
アスファルト舗装
建ぺい率:60%、
容積率:200%
調整区域につき建築許可要
遠鉄バス「初生大橋」徒歩4分

物件の特徴
モノが散らからない、ストレスフリーな毎日へ。土間収納からファミリークロークまで、適所適量の収納力。
■圧倒的な収納力
各居室にもしっかり クローゼットが設けられています。
キッチン横には便利な パントリー があり、食品や日用品のストックに困りません。
■生活動線の効率化
エントランス 横にシューズCL や コートCL があり、外からの汚れや花粉をリビングに持ち込みにくい「おかえり動線」が実現されています。
ファミリーCL と ランドリー、浴室 が近くに配置されており、洗濯・乾燥・収納の家事動線が非常にスムーズです。
■家族が集うゆとりのある空間
18.4帖 の広々とした ファミリーリビング・LDK が、家族団らんの中心となります。
リビング内に設けられた カスタヌック は、読書や子どもの学習スペース、趣味の場所など、多目的に使える「こもり感」のある心地よい空間を提供します。
■プライバシーと使いやすさの配慮
2階はプライベート性の高い空間となっており、家族それぞれのプライバシーが守られます。
1階には、メインベッドルーム から直接アクセスできる スタイリングエリアがあり、忙しい朝の身支度もスムーズです。
周辺環境

お車約3分以内で日々の買い物は済ませれちゃう!生活拠点で暮らしやすい!
ラフレ初生:徒歩14分(1060m)車約2分
フィルタウン:徒歩15分(1200m) 車約2分
業務スーパー小豆餅店:徒歩9分(720m)車約1分
セブンイレブン浜松葵東2丁目店:徒歩9分(716m)車約1分
ファミリーマート浜松初生テクノロード店:徒歩8分(620m)車約1分
クリエイトエス・ディー浜松葵東店:徒歩10分(750m) 車約2分
杏林堂薬局小豆餅店:徒歩13分(970m) 車約2分
浜松市立北星中学校:徒歩23分(1800m)
浜松市立初生小学校:徒歩14分(1100m)
たんぽぽ保育園:徒歩9分(700m)
小豆餠ゆすらうめこども園:徒歩12分(960m)車約2分
浜松葵郵便局:徒歩22分(1700m) 車約3分
JAとぴあ浜松初生支店:徒歩7分(505m)
有玉緑地:徒歩8分(600m)
東名高速道路「三方原スマートIC」 855m 車約2分
設備・構造

省エネ性能ラベル
「省エネ性能ラベル」で分かること
① 消費エネルギーが低いほど星の数が増える
② 断熱性能が高いほど家のマークが増える
③ 光熱費の目安が確認できる

制震ダンパーミライエ
このダンパーは高減衰ゴムを使用しており、地震の揺れを効率的に吸収することで、家の損傷を軽減します。また、繰り返し発生する余震にも効果を発揮し、家族とお家を守ります。

EV屋外コンセント/Panasonic
充電用コンセントに求められる「利便性」の向上を実現したEV・PHEV充電用屋外コンセント。片手だけでもプラグの抜き差しができるよう配慮されています。(※イメージ写真)

高圧力パワフル給湯/CORONA CHP-E37AZ1
パワフルシャワーで快適!減圧弁設定圧力260kPaで給湯圧力が1.5倍!コロナの高圧力パワフル給湯なら、家族みんなが喜ぶパワフルシャワーが楽しめます。(※イメージ写真)

抗ウイルスフローリング
朝日ウッドテックの抗ウイルスフローリング採用。99%以上の抗菌・抗ウイルス効果で繁殖を抑制し、傷や汚れにも強く、お手入れも簡単です。(※イメージ写真)

YKKAPの防犯ガラス
防犯性能の高い建物部品として官民合同会議に認定され、破れても飛散しにくいため、災害時にも安心。また、紫外線をカットする樹脂中間膜が入っています。(※イメージ写真)

タカラのキッチン
オフェリアは、美しさと機能性を兼ね備えたシンプルながら上質なデザイン。
金属とガラス、それぞれのいいところをあわせもつホーローを随所に採用。水や汚れ、熱に強く日々のお手入れは水拭きでOK!マグネットもくっつきます!
収納スペースも豊富で調理や片付けがスムーズに行えます。高い耐久性と衛生性も備え、長期間快適に使えます。(※イメージ写真)

TOTOのバスルーム
サザナは、お手入れがラクな機能が満載。乾きやすくカビにくい床や断熱材で包まれた魔法びん浴槽、浴室換気暖房乾燥機付きで常に清潔な環境を保ちます。使いやすさにもこだわった設計で、快適なバスタイムを過ごせます。(※イメージ写真)

タカラの洗面化粧台
エリシオは、天然石のような美しい質感が特徴。広いカウンターにたっぷりの収納スペースがあり、水栓もスタイリッシュで使い勝手も良い。汚れがつきにくくお手入れも簡単です。(※イメージ写真)

TOTOのトイレ
GG-J2は、機能性が充実。暖房機能や脱臭機能などで冬でも快適。環境に優しく、水の節約にも配慮。清掃性も高く、お手入れが簡単です。(※イメージ写真)

剛床構造
剛床構造は、床に剛性を持たせることで耐震性を高める構造です。地震による床の歪みを最小限に抑え、建物全体の歪みを均等に分散し、建物の倒壊を防ぎます。一般の在来工法に比べて約3倍の剛性があります。

一体型コンクリート基礎
継ぎ目のない頑丈な一体ベタ基礎。基礎全体で建物の重さを支えるため、地震や台風などの衝撃を効果的に地盤へ逃がすことができます。また、湿気やカビの発生を防止することができ、断熱効果にも優れています。

断熱シート
タイベックシルバーは、トータルバランスに優れた通気層構法における外装下地材。夏涼しく冬暖かいという遮熱性能と、躯体の劣化や腐敗を防ぐ透湿・防水機能に優れているだけでなく、これらの性能が長続きする強靭な建材です。

アフター定期点検保証
お引渡し前には、弊社で100項目以上の社内検査を行っております。 アフター定期訪問は、建物の引渡し後、一般的には1年目、5年目、10年目に行わせていただいております。

家具やエアコン付き
弊社の建売住宅は、リビングエアコン、全室LED照明、ソファ、ダイニングセット、スツールがついています!快適な生活を手軽に始められます。

優秀賞+省エネ住宅優良企業賞 W受賞
優れた省エネルギー住宅を表彰する制度「ハウスオブザイヤーインエナジー2022」において、優秀賞を3年連続で達成しました。2022年は、省エネ住宅優良企業賞も受賞しました!

ZEHビルダー4つ星獲得
ZEHビルダー評価制度で4つ星(★★★★)を獲得しました!私たちは引き続き環境と人に優しいゼロエネルギー住宅の普及を目指し、星6つを目指して取り組んでまいります。
