世に出ることがなかった「幻の間取りプラン」とは…

こんにちは!ベスト・ハウジングスタッフのSです。
ベスト・ハウジングではお客様のニーズに合わせた家を建て続けるために、定期的にプラン会議を行っています。今回は18回の会議を重ねたものの 世に出ることがなかった幻の間取りプランをご紹介します。なぜ幻の間取りプランとなったのか、その理由は後ほど…
すぐにプランを見たい!
我慢できない!という方はこちら
このプラン会議のメンバーは設計部・営業部・リフォーム部・工務部の選抜チーム。主となって会議を進めたのは設計部のNさん。
プラン会議では、まず初めにコンセプトを決めます。
【コンセプト】
●50代、60代をターゲットにした住宅。
●終の棲家を意識した、ミニマリストへも訴求できる住宅。
コンセプトが決まったら、みんなでイメージを膨らませ、キーワードを絞っていき家族構成まで考えます。
【キーワード】
緑の中に建つ家、長生き、自然、ゆったり、安全、防犯
【家族構成】
・ご主人(63歳)
会社経営者。趣味:山菜取り・ガーデニング。趣味部屋が欲しい。
・奥様(60歳)
専業主婦。趣味:ガーデニング・ご近所さんとのおしゃべり。縁側のようなスペースでちょっとお茶をしたい。
・ペット(ねこ10歳)
雑種。子猫でもらってきて、10年になる。家の中で飼っている。遊び場やケージを置くスペースが欲しい。
・長女(30歳)
長女夫婦は車で5分ぐらいのところに別宅を構えている。休みの日は実家に集まることがある。泊まりはしない。
・長男(27歳)
東京の大学を出て、東京でそのまま就職。帰ってくる予定は今のところないが、盆・正月は必ず帰省する。その際は実家に泊まる。
・
・
・
結構細かいですよね!
家族の名前まで考えることもあるみたいです笑
会議で少しずつイメージを膨らませ、その人たちが一日、一週間、一カ月、一年をどんな風に生活するのかをみんなで想像し、仕様を考え、間取図に落とし込んでいきます。
ベースとなる間取図をNさんが作成し、そこからさらにみんなで話し合っていきます。

★シューズCLは空気を入れ替えるために窓を設置したらどうか!
★パントリーは奥行を小さく。現状だと大き目の冷蔵庫が入らない。キッチンも少し寄せよう。
★外観は南面に屋根を向ける方が良い!
★外壁は黒メインではないほうがいい!
こんな風に何回も話し合いを繰り返し、間取図・仕様をどんどん改善していきます。
【仕様】
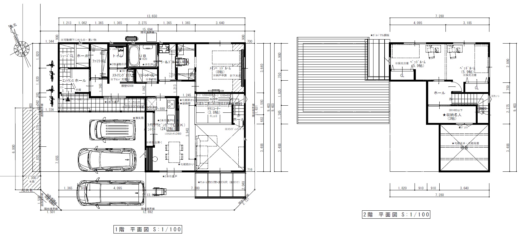
<配置>
・庭は緑いっぱいで車3台は停められる
<間取り>
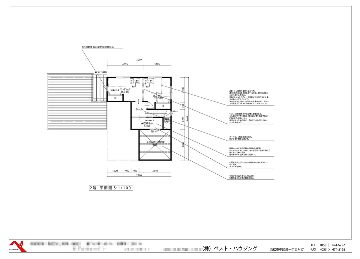
・基本形態は、平屋+@の2階2部屋。基本平屋での生活を基本と想定した。2階トイレは、定期的に水を流さないとニオイが発生する。その為に2階に上がるのも大変なので、2階トイレは敢えてなくした。
・1階にはLDK・ベッドルーム・フリールーム(縁側)・収納がある。
・バリアフリーに配慮する。回遊性。使い勝手を考えた収納高さ。車椅子にも配慮した計画にする。
・ペット共存を前提にする。2016年にペットは、ネコが犬を抜き逆転した為、ネコを想定する。
・ヒートショックを避ける温熱空間に配慮する。
・明るい室内にする。
・夫婦の気配が感じられ、プライベートが保たれる空間づくりをする。
<内部仕様>
・無垢の床や羽目板など自然素材を使った仕様とする。
・床暖房も予算が合えば付けたい。
<外部仕様>
・天井までのサッシで光が室内に出来るだけ差し込むようにする。
・軒の出を深くし、室内に入ってくる光の量を調節する。
・宅配BOXも設置できるスペースを作る。家に居ても出るまでに時間がかかることがあるので、宅配BOXがあれば気にする必要がなくなる。
屋外収納(灯油缶や外で使う道具など)が設置できるスペースを作る。
・後付けのサンルームがある。ランドリーにドライルームを併設するが、太陽光で洗濯物を干したい場合に、後付けのサンルームも併設したい。
・太陽光発電システムが載る屋根の形状にする。
・外壁の色は明るめにする。
<立地>
・子世帯から5分圏内
・公共施設や病院・スーパーなどへの利便性が高く、車を使わなくても電車やバスでも行ける。
・治安がいい。
・
・
・
そんな18回にも及ぶ
プラン会議で完成した
間取りプラン
⇩建物イメージがこちら⇩
ベスト・ハウジング幻の間取りプラン


・玄関ポーチ続きのテラスに座って子どもが庭で遊ぶところをニコニコ見ていたい!しかも屋根があるから日焼けもしにくい!!・ランドリー&ドライルームからWICにさっと入れるようになってるから、乾燥機で乾かしたり、浴室やドライルームで部屋干ししたらすぐにウォークインCLにしまえる!
・階段にドアが付いてるから子どもが小さいうちは勝手に階段を上らないように閉めておける!
・自分では想像がしにくい将来のことまで見据えられていて更に安心!
なんでこんなに素敵な家なのに建てていないんだろう?ボツになったのかな?…と気になり、設計部に「この家を建てていない理由」を聞きました。
この家が幻となった理由…
★設計部に詳しく話を聞いてみるとこの家を建てるならこの土地が良いという理想的な場所(※【仕様】立地を参照)があり、その土地に合わせて間取図を作成していたらしいのですが、なんとその土地が突然売れてしまったそうです。(本来喜ぶところ笑)
土地購入担当さんたちがいつも魅力的な土地を購入してきてくれるので仕方ないですね…笑
- でも、こんなにみんなで頑張って話し合って出来た大事な大事な間取りプランをどこにも出さないのは悲しすぎる!ということで、このブログで公開させてもらいました!
土地の大きさや形にもよりますが、こんな間取りプランが理想です!という方が現れたら、もしかしたらこの幻のプランも幻じゃなくなるかもしれません。(・∀・)ニヤニヤ
頑張って話し合った担当設計士のNさんやプラン会議選抜チームも喜びます(^▽^)
このプランが気になる!
このプランで建てたい!
このプランが忘れられない!という方は…
下記ご相談フォームよりお気軽にお問い合わせください👍