
物件概要・詳細

- 物件名
- 和地山2丁目12期
- 総区画
- 限定1区画分譲地情報
- 土地面積
- 109.65㎡(33.16坪)
- 建物面積
- 94.89㎡(28.70坪)
- 完成時期
- 2026年7月
- 建築確認番号
- 第2025確認建築静建住ま10156号
- 構造工法
- 木造2階建
- 施工会社
- 株式会社ベスト・ハウジング
- 地目
- 宅地
- 用途地域
- 第一種中高層住居専用地域
- 土地権利形態
- 所有権
- 学区
- 城北小学校、北部中学校
- その他概要
- ■売主物件のため仲介手数料は不要です
道路:道路幅 東側約4.0m~約4.2m、
アスファルト舗装
建ぺい率:60%、
容積率:160%
遠鉄バス「和地山」停まで徒歩3分

物件の特徴
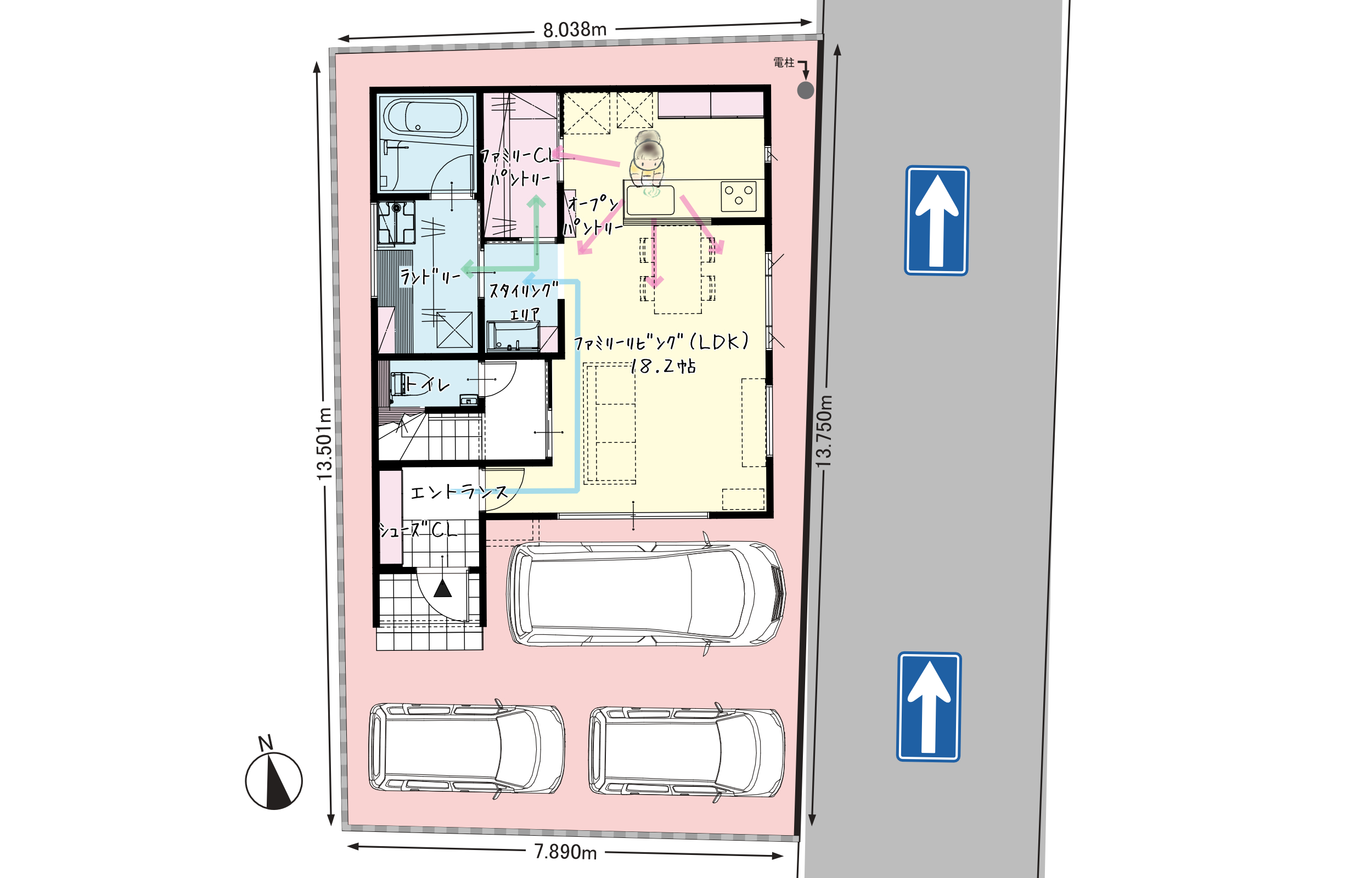
家事ラク動線×子育て環境。忙しいパパ・ママに贈る、ゆとりを生み出す邸宅。
1. 家事の負担を劇的に減らす「動線」
1階に集約された水まわりの動線が非常に秀逸です。
- 「洗う・干す・しまう」が最短距離: ランドリーから、隣のファミリークローゼットへ直結。洗濯物をその場、あるいは数歩で収納できる究極の時短動線です。
- キッチンを中心とした回遊性: キッチンからパントリー、水まわりへとササっと迎えて、忙しい朝のお子様への声かけや様子をうかがうのもラクラクです。
2. 充実した収納システム
各所に役割の異なる収納が配置されており、家が散らかりにくい設計です。
- 1F ファミリークローゼット: 普段着やパジャマをここに置けば、わざわざ2階に着替えに行く必要がありません。
- シューズクローゼット: 玄関横に十分なスペースがあり、家族全員の靴やベビーカー、外遊び道具もスッキリ収まります。
- パントリー(2箇所): 「オープンパントリー」と「クローズドパントリー」の使い分けができ、ストック品を効率よく管理できます。
- 2F ファミリークローゼット: 階段を上がってすぐの場所2階にもウォークインクローゼット完備で、季節物や家族共通の荷物を一括管理できます。
3. 家族のつながりを育むリビング設計
- 18.2畳の大空間LDK: リビング全体が見渡せる対面キッチンからは、リビングやダイニングにいる家族の様子がひと目でわかります。
- 階段: 2階へ行く際に必ずリビングを通るため、家族間のコミュニケーションが自然と生まれます。
4. プライバシーと使い勝手を両立した2階
- 主寝室+2つの個室: 7畳のメインベッドルームと、6.2畳の子供部屋(または書斎)が2つあり、4人家族でもゆとりを持って暮らせます。
- 小上がりになっているメインベッドルーム: スキップフロアになっている為、マットレスを直接敷いてベッドフレームを使わない寝室にできます。
周辺環境

前面道路は一方通行で安心!和地山公園徒歩2分と子育てしやすい住環境!生活利便施設と教育施設が充実!
● 小学校まで徒歩5分!
通学安心の距離。中学校も徒歩10分圏内と、教育環境が整った立地です。
● 買い物施設も徒歩圏内!
エブリィビッグデー高台店まで徒歩8分、セブンイレブンへは徒歩3分と、日常のお買い物もスムーズ。
● 保育園・幼稚園も徒歩圏内
子育て世代にうれしいポイントです。
● 徒歩わずか2分で「和地山公園」へアクセス可能!
緑豊かな公園でのびのびと遊べる環境は、子育てファミリーや毎日のお散歩を楽しみたい方にもぴったり。
エブリィビッグデー高台店:車約1分(600m)
セブンイレブン:徒歩3分(230m)
スギ薬局浜松住吉店:車約2分(950m)
浜松市立北部中学校:徒歩10分(800m)
浜松市立城北小学校:徒歩5分(350m)
浜松学院大学付属幼稚園:車約1分(550m)
上池さくらこども園:車約2分(900m)
聖隷浜松病院:徒歩8分(600m)
浜松和地山郵便局:徒歩3分(180m)
和地山公園:徒歩2分(170m)
遠州鉄道「助信」車2.6km
遠鉄バス「和地山」停まで徒歩3分
設備・構造

省エネ性能ラベル
「省エネ性能ラベル」で分かること
① 消費エネルギーが低いほど星の数が増える
② 断熱性能が高いほど家のマークが増える
③ 光熱費の目安が確認できる

制震ダンパーミライエ
このダンパーは高減衰ゴムを使用しており、地震の揺れを効率的に吸収することで、家の損傷を軽減します。また、繰り返し発生する余震にも効果を発揮し、家族とお家を守ります。

EV屋外コンセント/Panasonic
充電用コンセントに求められる「利便性」の向上を実現したEV・PHEV充電用屋外コンセント。片手だけでもプラグの抜き差しができるよう配慮されています。(※イメージ写真)

高圧力パワフル給湯/CORONA CHP-E37AZ1
パワフルシャワーで快適!減圧弁設定圧力260kPaで給湯圧力が1.5倍!コロナの高圧力パワフル給湯なら、家族みんなが喜ぶパワフルシャワーが楽しめます。(※イメージ写真)

抗ウイルスフローリング
朝日ウッドテックの抗ウイルスフローリング採用。99%以上の抗菌・抗ウイルス効果で繁殖を抑制し、傷や汚れにも強く、お手入れも簡単です。(※イメージ写真)

LIXILの防犯ガラス
特殊中間膜により、防犯機能を向上し破損時にも飛散しにくいため、災害時にも安心。遮熱・断熱性能も高く、エネルギー効率にも優れ、紫外線もほぼ100%カットしてくれます。(※イメージ写真)

タカラのキッチン
オフェリアは、美しさと機能性を兼ね備えたシンプルながら上質なデザイン。
金属とガラス、それぞれのいいところをあわせもつホーローを随所に採用。水や汚れ、熱に強く日々のお手入れは水拭きでOK!マグネットもくっつきます!
収納スペースも豊富で調理や片付けがスムーズに行えます。高い耐久性と衛生性も備え、長期間快適に使えます。(※イメージ写真)

TOTOのバスルーム
サザナは、お手入れがラクな機能が満載。乾きやすくカビにくい床や断熱材で包まれた魔法びん浴槽、浴室換気暖房乾燥機付きで常に清潔な環境を保ちます。使いやすさにもこだわった設計で、快適なバスタイムを過ごせます。(※イメージ写真)

タカラの洗面化粧台
エリシオは、天然石のような美しい質感が特徴。広いカウンターにたっぷりの収納スペースがあり、水栓もスタイリッシュで使い勝手も良い。汚れがつきにくくお手入れも簡単です。(※イメージ写真)

TOTOのトイレ
GG-J2は、機能性が充実。暖房機能や脱臭機能などで冬でも快適。環境に優しく、水の節約にも配慮。清掃性も高く、お手入れが簡単です。(※イメージ写真)

剛床構造
剛床構造は、床に剛性を持たせることで耐震性を高める構造です。地震による床の歪みを最小限に抑え、建物全体の歪みを均等に分散し、建物の倒壊を防ぎます。一般の在来工法に比べて約3倍の剛性があります。

一体型コンクリート基礎
継ぎ目のない頑丈な一体ベタ基礎。基礎全体で建物の重さを支えるため、地震や台風などの衝撃を効果的に地盤へ逃がすことができます。また、湿気やカビの発生を防止することができ、断熱効果にも優れています。

断熱シート
タイベックシルバーは、トータルバランスに優れた通気層構法における外装下地材。夏涼しく冬暖かいという遮熱性能と、躯体の劣化や腐敗を防ぐ透湿・防水機能に優れているだけでなく、これらの性能が長続きする強靭な建材です。

アフター定期点検保証
お引渡し前には、弊社で100項目以上の社内検査を行っております。 アフター定期訪問は、建物の引渡し後、一般的には1年目、5年目、10年目に行わせていただいております。

家具やエアコン付き
弊社の建売住宅は、リビングエアコン、全室LED照明、ソファ、ダイニングセット、スツールがついています!快適な生活を手軽に始められます。

優秀賞+省エネ住宅優良企業賞 W受賞
優れた省エネルギー住宅を表彰する制度「ハウスオブザイヤーインエナジー2022」において、優秀賞を3年連続で達成しました。2022年は、省エネ住宅優良企業賞も受賞しました!

ZEHビルダー4つ星獲得
ZEHビルダー評価制度で4つ星(★★★★)を獲得しました!私たちは引き続き環境と人に優しいゼロエネルギー住宅の普及を目指し、星6つを目指して取り組んでまいります。
