
物件概要・詳細

- 物件名
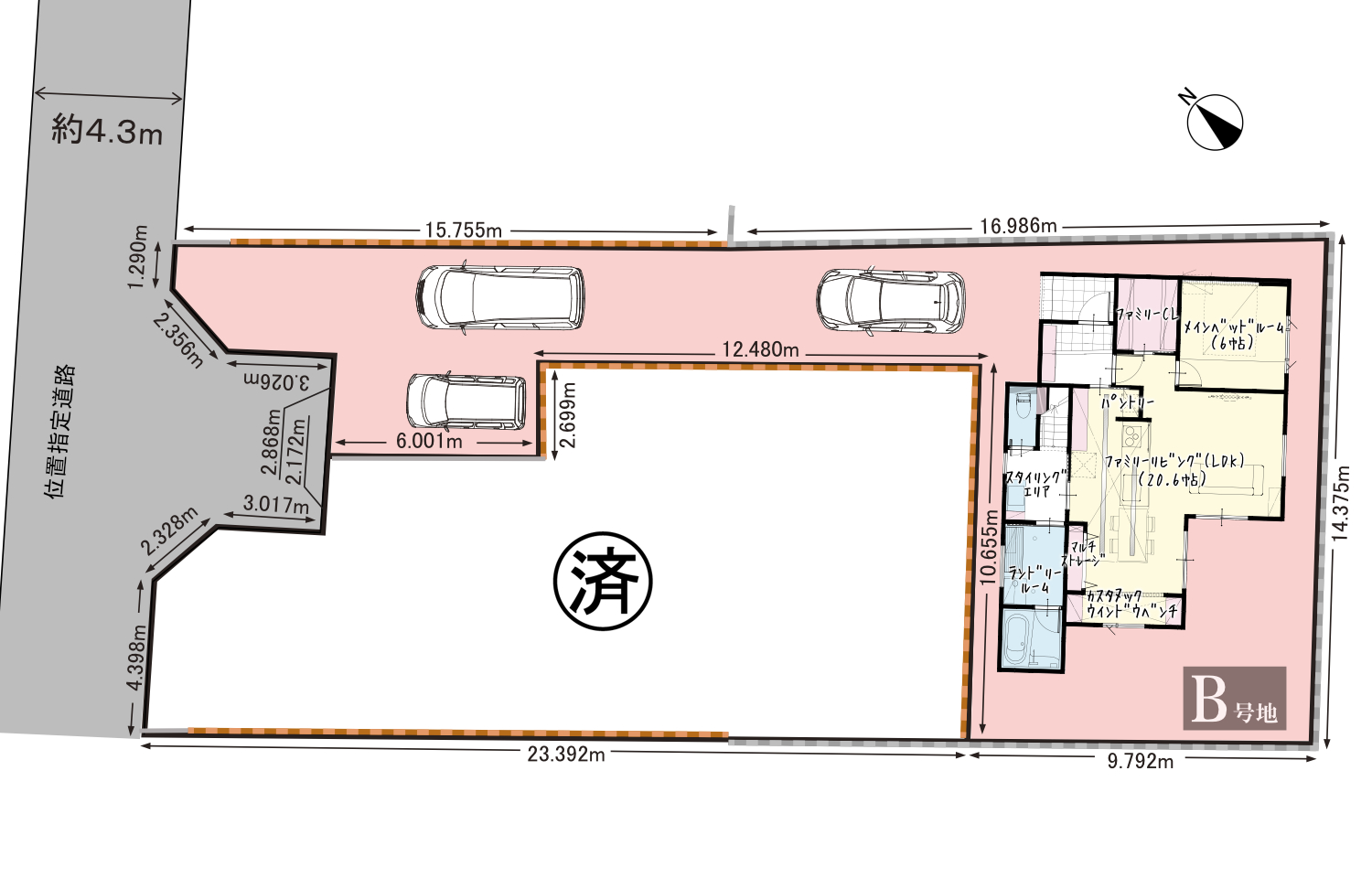
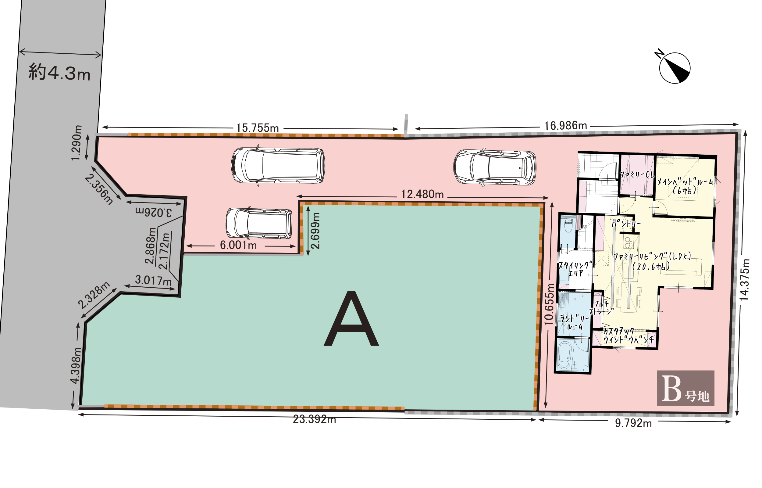
- 三方原町20期B号地
- 総区画
- 2区画分譲地情報
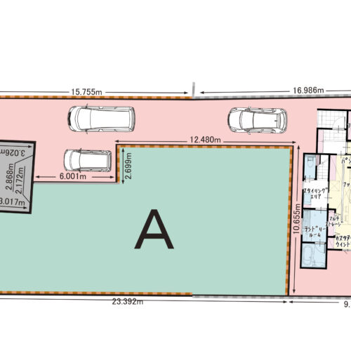
- 土地面積
- 229.44㎡(69.40坪)
- 建物面積
- 94.41㎡(28.55坪)
- 完成時期
- 2026年4月
- 建築確認番号
- 第2025確認建築静建住ま06552号
- 構造工法
- 木造2階建
- 施工会社
- 株式会社ベスト・ハウジング
- 地目
- 畑
- 土地権利形態
- 所有権
- 学区
- 三方原小学校、三方原中学校
- その他概要
- ■売主物件のため仲介手数料は不要です
道路:道路幅 北西約4.3m
アスファルト舗装
建ぺい率:60%
容積率:172%
調整区域につき建築許可要
遠鉄バス「曳馬野」停まで徒歩4分

物件の特徴
■ダークトーンの建具やキッチンは、家電や小物の生活感を上手に隠し、空間全体をアートのように見せてくれます。
家事効率を重視しつつ、家族でゆったりと過ごせる広いLDKのある家
ウィンドウベンチで多機能なLDK空間
窓際に設けられたウィンドウベンチスペースは、読書や休憩、お子様の遊び場、あるいは来客時の追加の席など、様々な用途に使える多機能な空間として活用できそうです。北面は足を入れれるように床を掘り込んでいます。
充実した収納スペース
1階に家族全員の衣類や荷物をまとめて収納できる大きなクローゼットがあることで、2階の各居室まで衣類を取りに行く手間が省け、またリビングに物が散らかりにくい生活が実現しやすくなります。
1階小上がりメインベッドルーム
1階に寝室があることで、将来的に階段の上り下りが負担になった際の生活のしやすさに配慮されています。また、床を上げており、ホテルライクのような暮らしもできそうです。
アウトドアリビング
L形に配置した掃き出し窓で、LDKとさらなるアウトドアリビングのような使い方が可能です。ウッドデッキやテラスを用いて、広々と活用できます。
周辺環境

遠鉄ストア初生店:徒歩6分
フィール初生店:徒歩9分
ファミリーマート浜松初生町店:徒歩8分、車約1分
ウエルシア浜松初生店:徒歩3分
三方原中学校:徒歩28分
浜松市立三方原小学校:徒歩9分
浜松市立三方原幼稚園:徒歩10分
浜松市立三方原保育園:徒歩14分
浜松北郵便局:徒歩4分
浜松いわた信用金庫初生支店:徒歩5分
三方原スマートインターチェンジ:車約4分
遠鉄バス「曳馬野」停:徒歩4歩
設備・構造

省エネ性能ラベル
「省エネ性能ラベル」で分かること
① 消費エネルギーが低いほど星の数が増える
② 断熱性能が高いほど家のマークが増える
③ 光熱費の目安が確認できる

制震ダンパーミライエ
このダンパーは高減衰ゴムを使用しており、地震の揺れを効率的に吸収することで、家の損傷を軽減します。また、繰り返し発生する余震にも効果を発揮し、家族とお家を守ります。

EV屋外コンセント/Panasonic
充電用コンセントに求められる「利便性」の向上を実現したEV・PHEV充電用屋外コンセント。片手だけでもプラグの抜き差しができるよう配慮されています。

高圧力パワフル給湯/CORONA
パワフルシャワーで快適!減圧弁設定圧力260kPaで給湯圧力が1.5倍!コロナの高圧力パワフル給湯なら、家族みんなが喜ぶパワフルシャワーが楽しめます。

抗ウイルスフローリング
朝日ウッドテックの抗ウイルスフローリング採用。99%以上の抗菌・抗ウイルス効果で繁殖を抑制し、傷や汚れにも強く、お手入れも簡単です。

YKKAPの防犯ガラス
防犯性能の高い建物部品として官民合同会議に認定され、破れても飛散しにくいため、災害時にも安心。また、紫外線をカットする樹脂中間膜が入っています。

タカラスタンダードのキッチン
オフェリアは、美しさと機能性を兼ね備えたシンプルながら上質なデザイン。
金属とガラス、それぞれのいいところをあわせもつホーローを随所に採用。水や汚れ、熱に強く日々のお手入れは水拭きでOK!マグネットもくっつきます!
収納スペースも豊富で調理や片付けがスムーズに行えます。高い耐久性と衛生性も備え、長期間快適に使えます。

TOTOのバスルーム
サザナは、お手入れがラクな機能が満載。乾きやすくカビにくい床や断熱材で包まれた魔法びん浴槽、浴室換気暖房乾燥機付きで常に清潔な環境を保ちます。使いやすさにもこだわった設計で、快適なバスタイムを過ごせます。

TOTOの洗面化粧台
オクターブは、美しさと使いやすさを兼ね備えたデザインが特徴。広い洗面スペースと収納スペース、ワイドなミラーとLED照明、ハンドソープやタオルを置くスペースなど、快適な空間を演出します。

TOTOのトイレ
GG-J2は、機能性が充実。暖房機能や脱臭機能などで冬でも快適。環境に優しく、水の節約にも配慮。清掃性も高く、お手入れが簡単です。

剛床構造
剛床構造は、床に剛性を持たせることで耐震性を高める構造です。地震による床の歪みを最小限に抑え、建物全体の歪みを均等に分散し、建物の倒壊を防ぎます。一般の在来工法に比べて約3倍の剛性があります。

一体型コンクリート基礎
継ぎ目のない頑丈な一体ベタ基礎。基礎全体で建物の重さを支えるため、地震や台風などの衝撃を効果的に地盤へ逃がすことができます。また、湿気やカビの発生を防止することができ、断熱効果にも優れています。

断熱シート
タイベックシルバーは、トータルバランスに優れた通気層構法における外装下地材。夏涼しく冬暖かいという遮熱性能と、躯体の劣化や腐敗を防ぐ透湿・防水機能に優れているだけでなく、これらの性能が長続きする強靭な建材です。

アフター定期点検保証
お引渡し前には、弊社で100項目以上の社内検査を行っております。 アフター定期訪問は、建物の引渡し後、一般的には1年目、5年目、10年目に行わせていただいております。

家具やエアコン付き
弊社の建売住宅は、リビングエアコン、全室LED照明、ソファ、ダイニングセット、スツールがついています!快適な生活を手軽に始められます。

優秀賞+省エネ住宅優良企業賞 W受賞
優れた省エネルギー住宅を表彰する制度「ハウスオブザイヤーインエナジー2022」において、優秀賞を3年連続で達成しました。2022年は、省エネ住宅優良企業賞も受賞しました!

ZEHビルダー4つ星獲得
ZEHビルダー評価制度で4つ星(★★★★)を獲得しました!私たちは引き続き環境と人に優しいゼロエネルギー住宅の普及を目指し、星6つを目指して取り組んでまいります。
