
物件概要・詳細

- 物件名
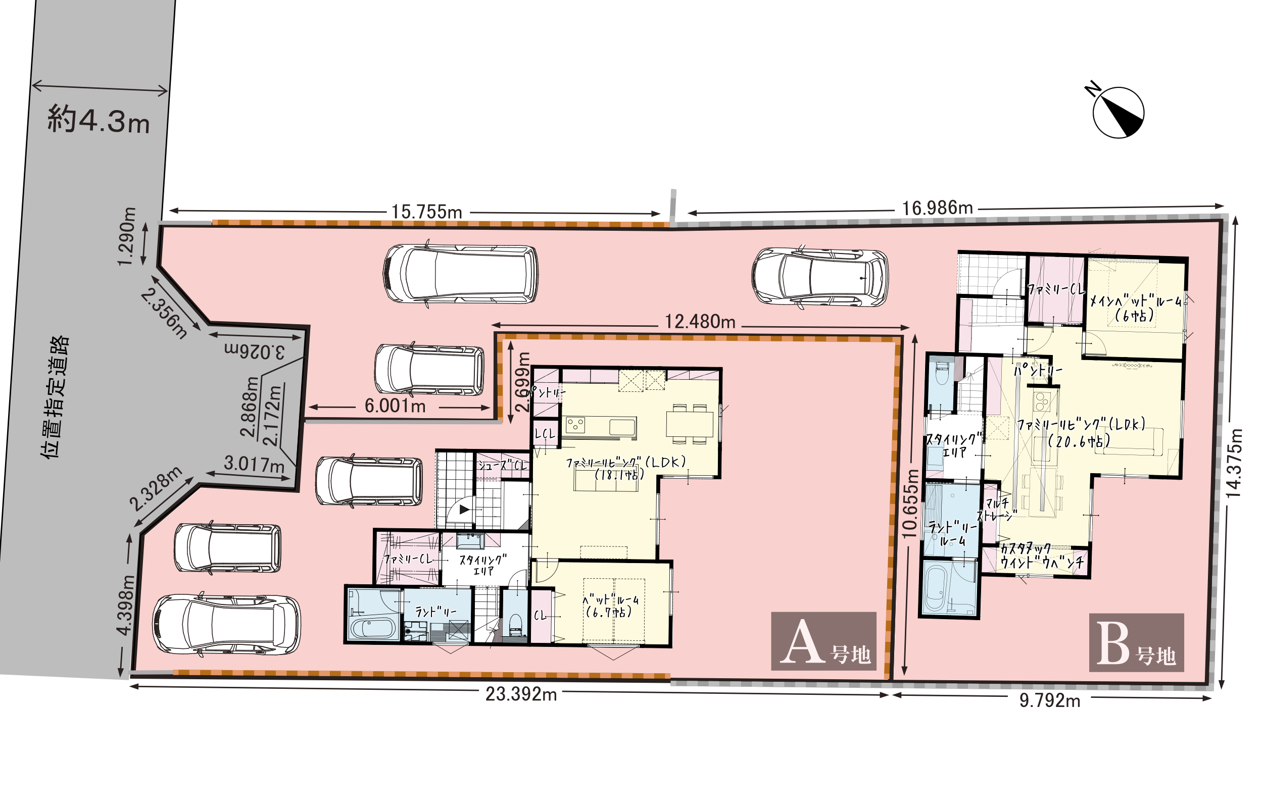
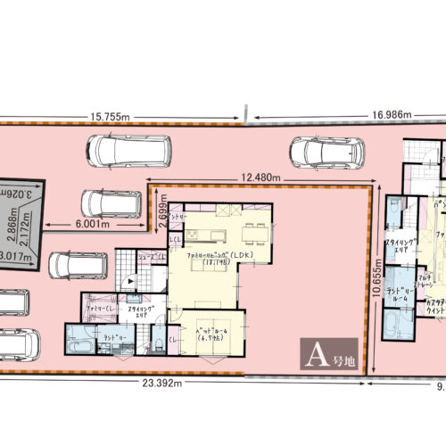
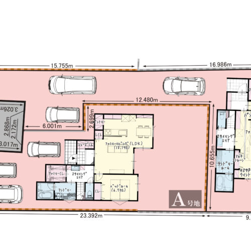
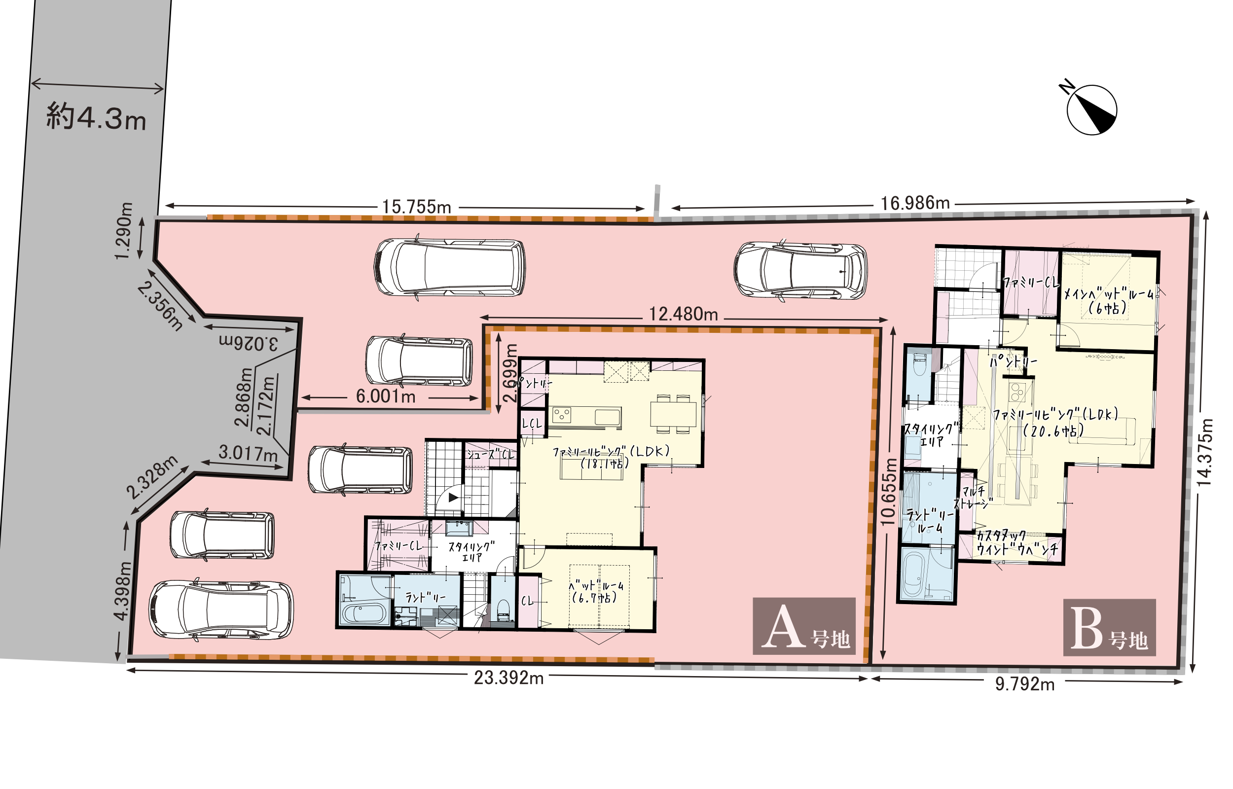
- 三方原町20期A号地
- 総区画
- 2区画分譲地情報
- 土地面積
- 207.48㎡(62.76坪)
- 建物面積
- 94.50㎡(28.58坪)
- 完成時期
- 2026年4月
- 建築確認番号
- 第2025確認建築静建住ま07902号
- 構造工法
- 木造2階建
- 施工会社
- 株式会社ベスト・ハウジング
- 地目
- 畑
- 土地権利形態
- 所有権
- 学区
- 三方原小学校、三方原中学校
- その他概要
- ■売主物件のため仲介手数料は不要です
道路:道路幅 北西4.3m、
アスファルト舗装
建ぺい率:60%、
容積率:200%
調整区域につき建築許可要
遠鉄バス「曳馬野」停まで徒歩4分

物件の特徴
18帖LDKと広大なお庭が、日常に解放感を与える住まい!
開放的なリビングとデッキ(オプション)!
自然の光と風を取り込む、開放的なLDKとデッキ空間が魅力のプラン。18帖のファミリーリビングは、ダイニングキッチンとゾーニングされており、家族が思い思いに過ごせるゆとりの広さです。さらに、贅沢に広がるウッドデッキを施せば、アウトドアリビングやセカンドリビングとしても活用可能。休日にはBBQを楽しんだり、お子様の遊び場にしたりと、多様な楽しみ方ができる特別な空間です。
たっぷり収納と家事動線
収納力と家事効率にこだわった、共働き世帯にもおすすめの住まいです。1Fは、広々18帖のファミリーリビングを中心に、LCL(リビングクローゼット)、パントリー、大容量のシューズCL(クローク)を完備。水回りもランドリールームとファミリーCLが直結しており、洗濯・乾燥・収納がワンフロアで完結するストレスフリーな動線を実現しました。
ライフステージの変化に寄り添い、家族それぞれの個性を育む住まい
家族構成の変化にも柔軟に対応するベッドルームを確保。個室の多さに加え、各階にトイレ、個室を設けることで、プライバシーを重視しながら暮らせます。玄関横にはシューズCL(クローク)やスタイリングエリアを設け、趣味の道具や外遊びのアイテムを収納でき、「おうち時間」をより豊かにする工夫が随所に光ります。
50m²の学びの庭。子どもが五感を磨き、ペットが安らぐ場所。
単なる遊び場以上の価値を提供します。お子様には、土や植物に触れる食育や、季節の変化を感じる五感の体験を。ペットには、安全に駆け回れる芝生エリアや、デッキ下の日陰など、自然の中で安らげる空間を。遊びと学び、そして癒やしを同時に育む、家族全員のための「第二のリビング」です。
周辺環境

遠鉄ストア初生店:徒歩6分
フィール初生店:徒歩9分
ファミリーマート浜松初生町店:徒歩8分、車約1分
ウエルシア浜松初生店:徒歩3分
三方原中学校:徒歩28分
浜松市立三方原小学校:徒歩9分
浜松市立三方原幼稚園:徒歩10分
浜松市立三方原保育園:徒歩14分
浜松北郵便局:徒歩4分
浜松いわた信用金庫初生支店:徒歩5分
三方原スマートインターチェンジ:車約4分
遠鉄バス「曳馬野」停:徒歩4歩
設備・構造

省エネ性能ラベル
「省エネ性能ラベル」で分かること
① 消費エネルギーが低いほど星の数が増える
② 断熱性能が高いほど家のマークが増える
③ 光熱費の目安が確認できる

制震ダンパーミライエ
このダンパーは高減衰ゴムを使用しており、地震の揺れを効率的に吸収することで、家の損傷を軽減します。また、繰り返し発生する余震にも効果を発揮し、家族とお家を守ります。

EV屋外コンセント/Panasonic
充電用コンセントに求められる「利便性」の向上を実現したEV・PHEV充電用屋外コンセント。片手だけでもプラグの抜き差しができるよう配慮されています。(※イメージ写真)

高圧力パワフル給湯/CORONA CHP-E37AZ1
パワフルシャワーで快適!減圧弁設定圧力260kPaで給湯圧力が1.5倍!コロナの高圧力パワフル給湯なら、家族みんなが喜ぶパワフルシャワーが楽しめます。(※イメージ写真)

抗ウイルスフローリング
朝日ウッドテックの抗ウイルスフローリング採用。99%以上の抗菌・抗ウイルス効果で繁殖を抑制し、傷や汚れにも強く、お手入れも簡単です。(※イメージ写真)

YKKAPの防犯ガラス
防犯性能の高い建物部品として官民合同会議に認定され、破れても飛散しにくいため、災害時にも安心。また、紫外線をカットする樹脂中間膜が入っています。(※イメージ写真)

LIXILのキッチン
ESシリーズは、広々としたカウンターと収納スペースがあり、料理に必要な物を手軽に取り出せます。また、シンク周りには汚れや水垢がつきにくく、お手入れも簡単です。(※イメージ写真)

LIXILのバスルーム
AXシリーズは、デザインと機能性を兼ね備えたバスルームです。広々とした空間でリラックスでき、お手入れも簡単です。(※イメージ写真)

タカラの洗面化粧台
エリシオは、天然石のような美しい質感が特徴。広いカウンターにたっぷりの収納スペースがあり、水栓もスタイリッシュで使い勝手も良い。汚れがつきにくくお手入れも簡単です。(※イメージ写真)

Panasonicのトイレ
アラウーノは、自動開閉や洗浄、暖房便座などの機能が揃い、高い洗浄力と節水を実現。自動洗浄や消臭機能で清潔を保ち、美しくスマートなデザインも魅力的。(※イメージ写真)

剛床構造
剛床構造は、床に剛性を持たせることで耐震性を高める構造です。地震による床の歪みを最小限に抑え、建物全体の歪みを均等に分散し、建物の倒壊を防ぎます。一般の在来工法に比べて約3倍の剛性があります。

一体型コンクリート基礎
継ぎ目のない頑丈な一体ベタ基礎。基礎全体で建物の重さを支えるため、地震や台風などの衝撃を効果的に地盤へ逃がすことができます。また、湿気やカビの発生を防止することができ、断熱効果にも優れています。

断熱シート
タイベックシルバーは、トータルバランスに優れた通気層構法における外装下地材。夏涼しく冬暖かいという遮熱性能と、躯体の劣化や腐敗を防ぐ透湿・防水機能に優れているだけでなく、これらの性能が長続きする強靭な建材です。

アフター定期点検保証
お引渡し前には、弊社で100項目以上の社内検査を行っております。 アフター定期訪問は、建物の引渡し後、一般的には1年目、5年目、10年目に行わせていただいております。

家具やエアコン付き
弊社の建売住宅は、リビングエアコン、全室LED照明、ソファ、ダイニングセット、スツールがついています!快適な生活を手軽に始められます。

優秀賞+省エネ住宅優良企業賞 W受賞
優れた省エネルギー住宅を表彰する制度「ハウスオブザイヤーインエナジー2022」において、優秀賞を3年連続で達成しました。2022年は、省エネ住宅優良企業賞も受賞しました!

ZEHビルダー4つ星獲得
ZEHビルダー評価制度で4つ星(★★★★)を獲得しました!私たちは引き続き環境と人に優しいゼロエネルギー住宅の普及を目指し、星6つを目指して取り組んでまいります。
