全体検索

小松21期B号地 新築分譲住宅

【長期優良住宅】【ベストの平屋】平屋ならではの暮らしやすさに、20帖のLDKとテラスにつながるカスタヌックでくつろぎを楽しめる住まいです。

4,498

万円

3LDK

浜松市浜名区小松2484 付近

完成予想図

間取図

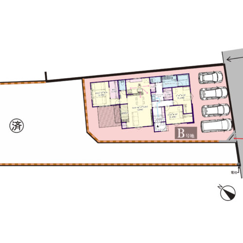
全体区画図

「省エネ性能ラベル」で分かること

① 消費エネルギーが低いほど星の数が増える

② 断熱性能が高いほど家のマークが増える

③ 光熱費の目安が確認できる

このダンパーは高減衰ゴムを使用しており、地震の揺れを効率的に吸収することで、家の損傷を軽減します。また、繰り返し発生する余震にも効果を発揮し、家族とお家を守ります。

完成予想図

完成予想図

完成予想図

完成予想図

制震ダンパーミライエ
画像一覧(13枚)
間取り図

完成予想図

間取図

全体区画図

「省エネ性能ラベル」で分かること

① 消費エネルギーが低いほど星の数が増える

② 断熱性能が高いほど家のマークが増える

③ 光熱費の目安が確認できる

このダンパーは高減衰ゴムを使用しており、地震の揺れを効率的に吸収することで、家の損傷を軽減します。また、繰り返し発生する余震にも効果を発揮し、家族とお家を守ります。

完成予想図

完成予想図

完成予想図

完成予想図

物件概要・詳細

物件名
小松21期B号地
総区画
2区画分譲地情報
土地面積
231.50㎡(70.02坪)
建物面積
91.93㎡(27.80坪)
完成時期
2026年9月
建築確認番号
第2025確認建築静建住ま12413号
構造工法
木造平屋建て
施工会社
株式会社ベスト・ハウジング
地目
用途地域
市街化調整区域
土地権利形態
所有権
学区
浜名小学校、浜名中学校
その他概要
■売主物件のため仲介手数料は不要です

道路:道路幅 8.8m
アスファルト舗装
建ぺい率:60%
容積率:200%
調整区域につき建築許可要

遠鉄バス「小松南」徒歩7分
遠州鉄道「遠州小松」車約3分
浜名小学校区 駐車4台 平屋 カスタヌック 長期優良住宅 EV屋外コンセント 高圧力パワフル給湯 建売 分譲住宅 新築一戸建て 浜松市浜名区 小松21期B号地
地盤保証 / 制震ダンパーミライエ搭載 / 省エネルギー対策 / フラット35Sに対応 / 地盤調査済 / 駐車4台 / LDK20帖以上 / 南西向き / 陽当り良好 / 省エネ給湯器 /システムキッチン / 対面式キッチン / 浴室乾燥機 / オートバス /浴室1坪以上 / シャワー付洗面化粧台 / トイレ2ヶ所 / 温水洗浄便座/ 節水型トイレ / 平屋建 / 複層ガラス / 防犯ガラス / アルゴンガス入りLow-Eガラス / 床下収納 / TVモニタ付インターホン / パントリー/ ウォークインクローゼット / 天井高2.5m以上 / IHクッキングヒーター / 深型食器洗い乾燥機 / 浄水器 / 長期優良住宅 / EV屋外コンセントPanasonic /高圧力パワフル給湯CORONA / 新築・建売住宅 / 浜松市浜名区 / 小松21期B号地

物件の特徴

並列4台駐車可能!LDK20帖でゆとりのある平屋3LDKの住まい!

窓際でくつろげるカスタヌック
家族の気配を感じながら、くつろげるリラックス空間♪                                              窓の外にはテラスが広がり、解放感のあるカスタヌックです。

手洗いまでスムーズな帰宅動線
帰宅後すぐに手が洗える衛生的な帰宅動線!スタイリングエリアとクローゼットが近いので                   荷物もすぐ片づけられるスマートな設計です。

トイレを2カ所に設置
平屋でもトイレを2つ設置。混み合う朝の時間帯も順番待ちせず、快適に使えます。

使いやすい2つのクローゼット
ランドリー近くの1.5帖のFCLを設け、洗濯後の収納もスムーズ! 主寝室には2.3帖のWICLを完備し、季節物や用途によっての使い分けができます。

周辺環境

サンストリート浜北:車約3分(2038m)
遠鉄ストア西ヶ崎店:車約2分(1323m)
セブンイレブン浜北小松店:徒歩7分(554m)
杏林堂薬局小松店:車約2分(799m)
浜松市立浜名中学校:徒歩15分(1160m)
浜松市立浜名小学校:徒歩7分(560m)
浜松市立小松幼稚園:徒歩4分(317m)
子育てセンターこまつ:車約1分(525m)
小松郵便局:車約2分(825m)
浜松市浜名区役所:車約2分(1293m)
浜松市立浜北図書館:車約2分(1279m)
遠州信用金庫浜北支店:車約2分(781m)

遠州鉄道「遠州小松」徒歩10分
遠鉄バス「西部免許センター」徒歩6分
遠鉄バス「小松南」徒歩7分

設備・構造

省エネ性能ラベル

「省エネ性能ラベル」で分かること
① 消費エネルギーが低いほど星の数が増える
② 断熱性能が高いほど家のマークが増える
③ 光熱費の目安が確認できる

制震ダンパーミライエ

このダンパーは高減衰ゴムを使用しており、地震の揺れを効率的に吸収することで、家の損傷を軽減します。また、繰り返し発生する余震にも効果を発揮し、家族とお家を守ります。

EV屋外コンセント/Panasonic

充電用コンセントに求められる「利便性」の向上を実現したEV・PHEV充電用屋外コンセント。片手だけでもプラグの抜き差しができるよう配慮されています。(※イメージ写真)

高圧力パワフル給湯/CORONA CHP-E37AZ1

パワフルシャワーで快適!減圧弁設定圧力260kPaで給湯圧力が1.5倍!コロナの高圧力パワフル給湯なら、家族みんなが喜ぶパワフルシャワーが楽しめます。(※イメージ写真)

抗ウイルスフローリング

朝日ウッドテックの抗ウイルスフローリング採用。99%以上の抗菌・抗ウイルス効果で繁殖を抑制し、傷や汚れにも強く、お手入れも簡単です。(※イメージ写真)

YKKAPの防犯ガラス

防犯性能の高い建物部品として官民合同会議に認定され、破れても飛散しにくいため、災害時にも安心。また、紫外線をカットする樹脂中間膜が入っています。(※イメージ写真)

タカラのキッチン

オフェリアは、美しさと機能性を兼ね備えたシンプルながら上質なデザイン。
金属とガラス、それぞれのいいところをあわせもつホーローを随所に採用。水や汚れ、熱に強く日々のお手入れは水拭きでOK!マグネットもくっつきます!
収納スペースも豊富で調理や片付けがスムーズに行えます。高い耐久性と衛生性も備え、長期間快適に使えます。(※イメージ写真)

TOTOのバスルーム

サザナは、お手入れがラクな機能が満載。乾きやすくカビにくい床や断熱材で包まれた魔法びん浴槽、浴室換気暖房乾燥機付きで常に清潔な環境を保ちます。使いやすさにもこだわった設計で、快適なバスタイムを過ごせます。(※イメージ写真)

TOTOの洗面化粧台

オクターブは、美しさと使いやすさを兼ね備えたデザインが特徴。広い洗面スペースと収納スペース、ワイドなミラーとLED照明、ハンドソープやタオルを置くスペースなど、快適な空間を演出します。(※イメージ写真)

TOTOのトイレ

GG-J2は、機能性が充実。暖房機能や脱臭機能などで冬でも快適。環境に優しく、水の節約にも配慮。清掃性も高く、お手入れが簡単です。(※イメージ写真)

剛床構造

剛床構造は、床に剛性を持たせることで耐震性を高める構造です。地震による床の歪みを最小限に抑え、建物全体の歪みを均等に分散し、建物の倒壊を防ぎます。一般の在来工法に比べて約3倍の剛性があります。

一体型コンクリート基礎

継ぎ目のない頑丈な一体ベタ基礎。基礎全体で建物の重さを支えるため、地震や台風などの衝撃を効果的に地盤へ逃がすことができます。また、湿気やカビの発生を防止することができ、断熱効果にも優れています。

断熱シート

タイベックシルバーは、トータルバランスに優れた通気層構法における外装下地材。夏涼しく冬暖かいという遮熱性能と、躯体の劣化や腐敗を防ぐ透湿・防水機能に優れているだけでなく、これらの性能が長続きする強靭な建材です。

アフター定期点検保証

お引渡し前には、弊社で100項目以上の社内検査を行っております。 アフター定期訪問は、建物の引渡し後、一般的には1年目、5年目、10年目に行わせていただいております。

家具やエアコン付き

弊社の建売住宅は、リビングエアコン、全室LED照明、ソファ、ダイニングセット、スツールがついています!快適な生活を手軽に始められます。

優秀賞+省エネ住宅優良企業賞 W受賞

優れた省エネルギー住宅を表彰する制度「ハウスオブザイヤーインエナジー2022」において、優秀賞を3年連続で達成しました。2022年は、省エネ住宅優良企業賞も受賞しました!

ZEHビルダー4つ星獲得

ZEHビルダー評価制度で4つ星(★★★★)を獲得しました!私たちは引き続き環境と人に優しいゼロエネルギー住宅の普及を目指し、星6つを目指して取り組んでまいります。