物件概要・詳細

- 物件名
- 有玉北町15期
- 総区画
- 限定1区画分譲地情報
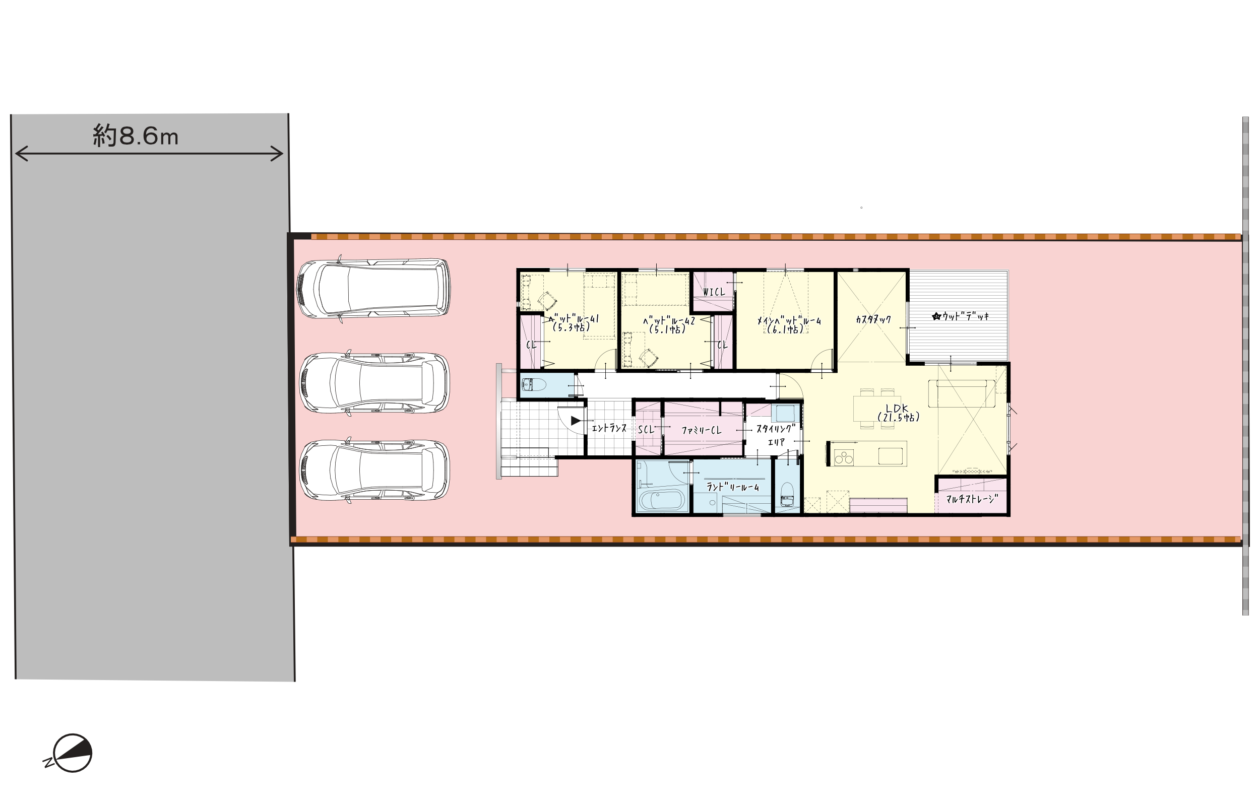
- 土地面積
- 283.04㎡(85.61坪)
- 建物面積
- 99.75㎡(30.17坪)
- 完成時期
- 2025年8月(即引渡可)
- 建築確認番号
- 第2024確認建築静建住ま11091号
- 構造工法
- 木造1階建
- 施工会社
- 株式会社ベスト・ハウジング
- 地目
- 宅地
- 用途地域
- 市街化調整区域
- 土地権利形態
- 所有権
- 学区
- 有玉小学校、積志中学校
- その他概要
- 道路:道路幅 北側約8.6m、
アスファルト舗装
建ぺい率:60%、
容積率:200%
調整区域につき建築許可要
遠鉄バス「有玉団地南」停 徒歩10分
遠州鉄道「さぎの宮」駅 徒歩13分

物件の特徴
グレーはトレンドから王道に。
ベストの平屋!並列3台駐車可能!LDK21帖以上!平屋でも開放的な空間に、収納スペースに困らない間取り。
・人気の平屋!
85坪の敷地に、ゆったり平屋。駐車場から庭が見えないプライベートな空間♪
・イケメングレーのモルタル調フローリングを採用!
木目のないモルタル調の床を使用!ニュートラルで落ち着いた印象のあるグレーは、万能色でありコーディネートもしやすく幅広い層に支持されています。また、家に合わせてグレーのウッドデッキを採用しているのも注目です。
・解放感があるつくりとこだわりのインテリア!
掃き出し窓を背にしたソファ側から広がる勾配天井は開放感があります。ホールとリビングをつなぐブラックガラスファミットのかっこよさや、各所の照明インテリアも注目です!
・テレビ裏の収納など各所に充実スペース!
普段は見えないけど、必要な時はすぐに出せる!そんなマルチストレージ。片付けも映えも意識できる!気持ちいいキッチンになりそうな背面収納空間!冷凍庫を置けたり、スイッチ類をニッチに集約させたり、コンセントの場所などにも注目してほしいです。
・サイクルポート、置き配スペースのあるポーチ
自転車や置き配ができるスペースのあるゆったりとしたポーチです。
道路側からの視線を遮る外構も施工してからのお渡しになります。
周辺環境

エブリィビッグデー有玉南店:車約3分(1509m)
ファミリーマート浜松有玉北店:車約1分(613m)
杏林堂薬局有玉南町店:車約2分(968m)
浜松市立積志中学校:徒歩18分(1380m)
浜松市立有玉小学校:徒歩5分(332m)
みどり保育園:車約1分(661m)
浜松市立有玉幼稚園:車約2分(852m)
浜松有玉郵便局:車約2分(794m)
遠州鉄道「さぎの宮」駅:徒歩13分(1008m)
遠鉄バス「有玉団地南」徒歩10分(750m)
設備・構造

省エネ性能ラベル
「省エネ性能ラベル」で分かること
① 消費エネルギーが低いほど星の数が増える
② 断熱性能が高いほど家のマークが増える
③ 光熱費の目安が確認できる

制震ダンパーミライエ
このダンパーは高減衰ゴムを使用しており、地震の揺れを効率的に吸収することで、家の損傷を軽減します。また、繰り返し発生する余震にも効果を発揮し、家族とお家を守ります。

EV屋外コンセント/Panasonic
充電用コンセントに求められる「利便性」の向上を実現したEV・PHEV充電用屋外コンセント。片手だけでもプラグの抜き差しができるよう配慮されています。

高圧力パワフル給湯/CORONA CHP-E37AZ1
パワフルシャワーで快適!減圧弁設定圧力260kPaで給湯圧力が1.5倍!コロナの高圧力パワフル給湯なら、家族みんなが喜ぶパワフルシャワーが楽しめます。(※イメージ写真)

抗菌フローリング/EIDAI conCarbo
素材の美しさは インテリアの新たなベースラインモチーフとなる素材の表情を表現することにこだわったフローリングです。

YKKAPの防犯ガラス
防犯性能の高い建物部品として官民合同会議に認定され、破れても飛散しにくいため、災害時にも安心。また、紫外線をカットする樹脂中間膜が入っています。

タカラのキッチン
オフェリアは、美しさと機能性を兼ね備えたシンプルながら上質なデザイン。収納スペースも豊富で調理や片付けがスムーズに行えます。高い耐久性と衛生性も備え、長期間快適に使えます。

TOTOのバスルーム
サザナは、お手入れがラクな機能が満載。乾きやすくカビにくい床や断熱材で包まれた魔法びん浴槽、浴室換気暖房乾燥機付きで常に清潔な環境を保ちます。使いやすさにもこだわった設計で、快適なバスタイムを過ごせます。

タカラの洗面化粧台
エリシオは、天然石のような美しい質感が特徴。広いカウンターにたっぷりの収納スペースがあり、水栓もスタイリッシュで使い勝手も良い。汚れがつきにくくお手入れも簡単です。

TOTOのトイレ
GG-J2は、機能性が充実。暖房機能や脱臭機能などで冬でも快適。環境に優しく、水の節約にも配慮。清掃性も高く、お手入れが簡単です。

剛床構造
剛床構造は、床に剛性を持たせることで耐震性を高める構造です。地震による床の歪みを最小限に抑え、建物全体の歪みを均等に分散し、建物の倒壊を防ぎます。一般の在来工法に比べて約3倍の剛性があります。

一体型コンクリート基礎
継ぎ目のない頑丈な一体ベタ基礎。基礎全体で建物の重さを支えるため、地震や台風などの衝撃を効果的に地盤へ逃がすことができます。また、湿気やカビの発生を防止することができ、断熱効果にも優れています。

断熱シート
タイベックシルバーは、トータルバランスに優れた通気層構法における外装下地材。夏涼しく冬暖かいという遮熱性能と、躯体の劣化や腐敗を防ぐ透湿・防水機能に優れているだけでなく、これらの性能が長続きする強靭な建材です。

アフター定期点検保証
お引渡し前には、弊社で100項目以上の社内検査を行っております。 アフター定期訪問は、建物の引渡し後、一般的には1年目、5年目、10年目に行わせていただいております。

家具やエアコン付き
弊社の建売住宅は、リビングエアコン、全室LED照明、ソファ、ダイニングセット、スツールがついています!快適な生活を手軽に始められます。

優秀賞+省エネ住宅優良企業賞 W受賞
優れた省エネルギー住宅を表彰する制度「ハウスオブザイヤーインエナジー2022」において、優秀賞を3年連続で達成しました。2022年は、省エネ住宅優良企業賞も受賞しました!

ZEHビルダー4つ星獲得
ZEHビルダー評価制度で4つ星(★★★★)を獲得しました!私たちは引き続き環境と人に優しいゼロエネルギー住宅の普及を目指し、星6つを目指して取り組んでまいります。
