全体検索

ご成約済み

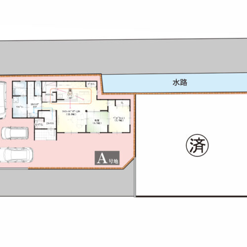
\外構が完成しました!/リビング18帖以上の4LDK!部屋ごとに必要な収納が充実しており、1階のベッドルームで平屋風の暮らしができる2階建ての家。駐車3台に庭付き物件が魅力的なおうちです。

地盤調査と保証

★地盤調査
家が傾くと、日常生活に影響を与えたり、耐震性能が著しく損なわれるため、それを未然に防ぐために地盤調査を実施しています。地盤がどの程度の建物の重さに耐え、沈下に抵抗する力をもっているかを調査します。

傾斜地や地盤の軟弱な場所で不同沈下が起きやすいと言われているため、地盤調査会社が、調査したデータをもとに解析をし、不同沈下の危険性が認められた場合、基礎の補強工事や地盤改良工事を施します。(地盤解析相談判定書)

不同沈下・・・家全体が均等に沈下するのではなく、一方向に斜めに傾くような状態のこと。

 

★地盤保証 20年
万が一、建物に不同沈下が起きた場合、原状と同程度に回復するための修繕に必要な費用を保証します。
地盤改良を施した物件はもちろん、行っていない物件にも保証が付いています。

保証期間:20年
保証限度額:5,000万円
液状化調査

★液状化調査
東日本大震災では、地盤の液状化被害が問題となりました。
当社は、建物着工前に液状化調査を実施しておりますので、ご安心ください。

液状化調査により、液状化の恐れがあると判断された場合、基礎の補強工事や液状化工事を施します。(簡易液状化診断書)

 

本記事の情報は投稿時のものです。
最新の情報はお問い合わせください。

    見学予約フォーム

    以下の内容でお間違いなければ、「送信する」ボタンを押してください。

    物件の見学予約は、下記お問い合わせフォームまたはお電話をご利用ください。

    ※直近のご見学予約はお電話にてお問い合わせください。
    ※定休日/水・木(第1・第3水曜は営業)

    営業を目的としたお問い合わせはご遠慮ください。お電話にて受け付けております。

    電話をかける 053-474-6252
    お名前
    フリガナ
    ご希望の連絡方法 ※弊社スタッフがご連絡を差し上げる際のご希望をお選びくださいませ。
    お電話番号
    連絡希望時間帯 ※お電話でのご連絡をご希望の際は、必ずお選びください。
    メールアドレス ※メールでのご連絡をご希望の際は、必ずご記入ください。
    ご住所
    郵便番号 住所検索
    町名まで
    以下住所
    見学ご希望日時
    第一希望
    第二希望
    第三希望
    ご希望の物件・地域
    第一希望
    第二希望
    第三希望
    お問合せ内容の詳細 ご自由にご記入ください。
    ベスト・ハウジングを知ったきっかけをよろしければ教えてください。
    営業スタッフのご希望営業スタッフリクエストご希望があれば営業スタッフをリクエストできます。スタッフ紹介はこちら↗︎
    希望
    お問い合わせにはプライバシーポリシー↗︎への同意が必要です。
    営業を目的としたお問い合わせはご遠慮ください。お電話にて受け付けております。